Будни: с 9:00 – 18:00
Заказать звонок
00
Каталог товаров
Каталог товаров
Каталог товаров

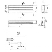
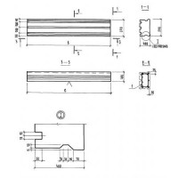
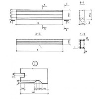
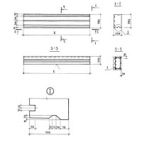
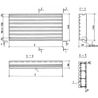
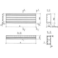
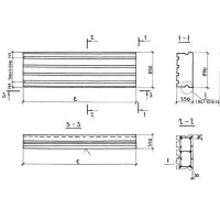
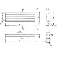
Плиты Серия

0Избранное0СравнениеОформить заказ