Будни: с 9:00 – 18:00
Заказать звонок
00
Каталог товаров
Каталог товаров
Каталог товаров

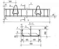
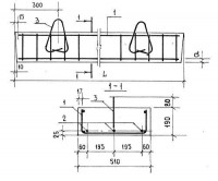
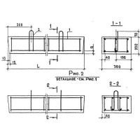
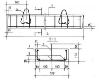
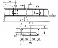
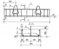
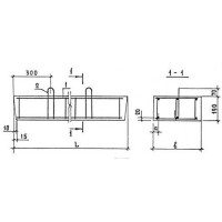
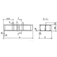
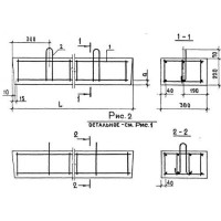
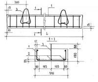
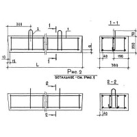
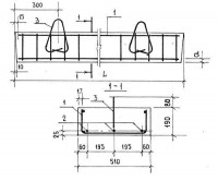
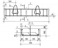
Перемычки плитные ПП ГОСТ 948-84

0Избранное0СравнениеОформить заказ