Будни: с 9:00 – 18:00
Заказать звонок
00
Каталог товаров
Каталог товаров
Каталог товаров

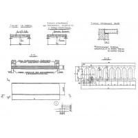
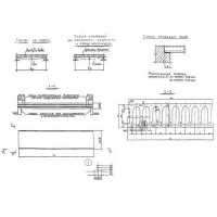
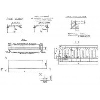
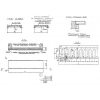
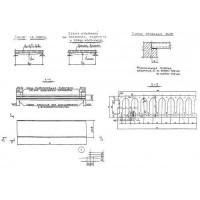
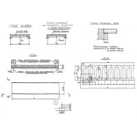
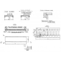
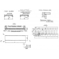
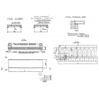
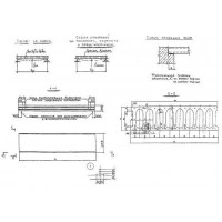
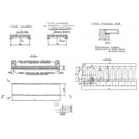
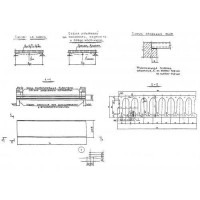
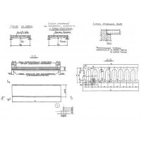
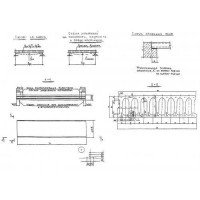
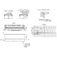
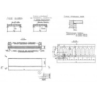
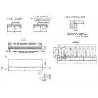
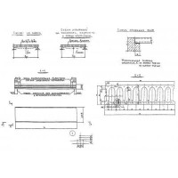
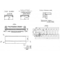
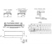
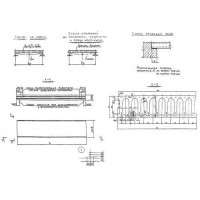
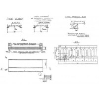
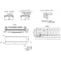
Плиты перекрытия многопустотные ПБ шириной 1,2 метра Серия ИЖ 745-01

0Избранное0СравнениеОформить заказ