Будни: с 9:00 – 18:00
Заказать звонок
00
Каталог товаров
Каталог товаров
Каталог товаров

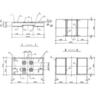
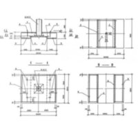
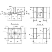
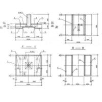
Подножники Серия 3.407.9-180

0Избранное0СравнениеОформить заказ