Размеры:
- Длинна: 1180 мм.
- Ширина: 330 мм.
- Высота: 100 мм.
- Вес: 57 кг.
- ГОСТ, Серия: ГОСТ 8717.0-84 скачать
- Объем бетона: 0,34 м3
- Геометрический объем: 0,0389 м3
- Цена: договорная
Стандарт изготовления изделия: ГОСТ 8717.0-84
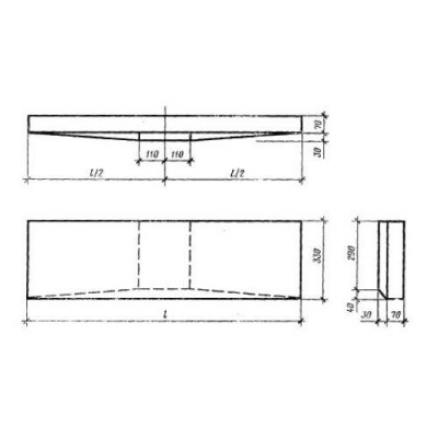
Ступени плоские для сквозных маршей ЛСС 12 с – являются обязательной составной частью сборных конструкций наружных и внутренних лестниц. Визуально они напоминаю вытянутый в длину параллелепипед из цельного железобетона. С нерабочей стороны ступеней вдоль их короткой оси сделано плавное возвышение шириной 200 мм с небольшим скосом с одной стороны. Благодаря такой оригинальной конфигурации обеспечивается надежная фиксация проступи на наборных лестничных маршах. Если вы хотите применить бетонные армированные ступени плоские для сквозных маршей ЛСС 12 с при строительстве зданий разнообразного функционального назначения, то в ГОСТ 8717.0-84 приведены разнообразные варианты типовых чертежей этих изделий различного вида и размеров.
1. Варианты маркировки
Каждую произведенную ступень плоскую для сквозных маршей ЛСС 12 с обязательно шифруют условными обозначениями по буквенно-цифровой системе. В ГОСТ 8717.0-84 приведены разнообразные варианты маркировки этих деталей. Этот регламентирующий документ рекомендует указывать на боковой грани ступени вид изделия, ее габаритные размеры, вариант исполнения.
1. ЛСС 12;
2. ЛСС 12 г;
3. ЛСС 12 л;
4. ЛСС 12 л-1;
5. ЛСС 12 л-1 г
6. ЛСС 12 л-1 ш;
7. ЛСС 12 лг;
8. ЛСС 12-1;
9. ЛСС 12 с;
10. ЛСС 12 ш.
2. Основная сфера применения
Бетонные армированные ступени плоские для сквозных маршей ЛСС 12 с предназначены для обустройства внутренних и наружных наборных лестниц различного применения в зданиях жилого, промышленного либо общественного назначения. Эти конструктивные составляющие дают возможность получать надежные сооружения позволяющие обеспечить безопасные условия передвижения между этажами любого высотного строения. Армированные бетонные ступени плоские для сквозных маршей ЛСС 12 с обязаны гарантированно выдерживать предельные вертикальные нагрузки не меньше 200кг/см2. Надежная фиксация этих изделий на различном несущем основании обеспечивается за счет наличия в их структуре закладных деталей. С помощью этих элементов производится сварка соседних составляющих наборных лестничных маршей. После этого место соединения заделывается по технологии замоноличивания. Армированные бетонные ступени плоские для сквозных маршей ЛСС 12 с рекомендуется использовать в зданиях с отсутствием агрессивной среды любой степени. Допускается эксплуатация армированных бетонных изделий такого вида в широком диапазоне температурного режима. Их можно применять даже при температурах не ниже -40С. Кроме функционального назначения эти обязательные составляющие наборных межэтажных конструкций способны предать лестничным маршам различного типа оригинальный эксклюзивный вид. Рабочие части бетонных армированных плоских ступеней должны иметь гладкие и ровные поверхности без выбоин и сколов.
3. Обозначение маркировка изделия
На ступени плоские для сквозных маршей ЛСС 12 с, изготовленные из железобетона, в соответствии с требованиями ГОСТ 8717.0-84 наносятся условные обозначения по буквенно-цифровой системе. Они кратко предоставляют информацию о виде и длине ступеней, наличии закладных деталей в структуре изделий, из какого материала они изготовлены, варианте обработки поверхности. Например, если мы решим расшифровать маркировку на боковой грани ступеней плоских для сквозных маршей ЛСС 12 с, то узнаем, что символы условной кодировки обозначают:
1. ЛСС – это плоские ступени для сквозных лестничных маршей;
2. 12 – длина в дециметрах;
3. ступени, изготовленные из плотного силикатного бетона.
Планируя возведение наборных лестниц с использованием ступеней плоских для сквозных маршей ЛСС 12 с, желательно обратить внимание на дополнительные их параметры:
Длина = 1180;
Ширина = 330;
Высота = 100;
Вес = 57;
Объем бетона = 0,34;
Геометрический объем = 0,0389.
4. Изготовление и основные характеристики
Планируя организовывать производство бетонных армированных ступеней плоских для сквозных маршей ЛСС 12 с поможет информация представленная в проектной ГОСТ 8717.0-84 . В нем специалисты приводят рабочие чертежи типовых конструкций этих изделий, схемы сборки армирующих деталей, тонкости технологии изготовления, особенности условий проведения испытаний и приемки изготовленной продукции. В этом документе написано, что для обеспечения гарантированной прочности и жесткости элементов наборных лестниц рекомендуется использовать в их структуре пространственных каркасов, собранных из усиливающих армирующих сеток. Для изготовления этих усиливающих элементов рекомендуется применять горячекатаную упрочненную арматурную сталь периодического профиля класса А-III при этом марки подбирается с учетом особенностей эксплуатации. Сборку армирующих деталей рекомендуется производить на установках точечной контактной электросварки. Формовка ступеней плоских для сквозных маршей ЛСС 12 с осуществляется по технологии вибролитья. При этом необходимо применять бетонные смеси на основе тяжелых марок В25, к примеру, М200. Изготовленные формовочные растворы такого состава дают возможность получать железобетонную продукцию, отличающуюся достаточной прочностью, жесткостью, устойчивостью к образованию трещин. Также они предают бетонным армированным ступеням плоским для сквозных маршей ЛСС 12 с хорошую водонепроницаемость и отличную устойчивость к действию низких температур.
5. Транспортировка и хранение
Железобетонные массивные ступени плоские для сквозных маршей ЛСС 12 с рекомендуется складировать и перевозить, укладывая их в штабеля высотой не больше 5 ярусов. Во время укладки между ними необходимо прокладывать деревянные рейки толщиной не менее 20 мм. Подробнее с условиями транспортировки и хранения этих изделий можно ознакомиться в ГОСТ 8717.0-84 , специально разработанной для всех составляющих, предназначенных для сборки наборных лестниц по сплошному основанию.
Ступени плоские для сквозных маршей ЛСС 12 с отзывы


