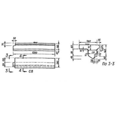
Размеры:
- Длинна: 1200 мм.
- Ширина: 260 мм.
- Высота: 163 мм.
- Вес: 95 кг.
- ГОСТ, Серия: Серия ИИ 01-02 скачать
- Объем бетона: 0,038 м3
- Геометрический объем: 0,0509 м3
- Цена: договорная
Стандарт изготовления изделия: Серия ИИ 01-02
Ступени С 8 (ИИ 01-02) относятся к ряду высококачественных строительных материалов. Конструкции имеют в поперечном сечении «г» - образную форму, основная же часть элементов представлена в виде прямоугольных блоков. К отличительным особенностям изделий можно отнести наличие небольшого закругления, проходящего по всей длине одной из продольных граней. Элементы отличаются высоким качеством лицевых поверхностей. Дополнительно на теле конструкций могут присутствовать квадратные углубления, необходимые для последующего размещения перил.
Применяются индустриальные унифицированные ступени в сфере гражданского строительства при возведении жилых домов, общественных зданий, административно-бытовых сооружений и других учреждений. Конструкции используется для формирования лестничного марша, необходимого для комфортного перемещения людей. В зависимости от расположения в проекте марша ступени могут подразделяться на верхние и нижние конструкции. Элементы обладают высокой прочностью и устойчивостью к истираемости, а также продолжительным эксплуатационным сроком. При разработке конструкций учитывались требования НиТУ 3-49 и ОСТ 90098-40.
Маркировочное обозначение
На поверхности элементов в обязательном порядке выносятся знаки, которые показывают главные характеристики конструкций. Совокупность символов С 8 (ИИ 01-02) имеет следующую расшифровку:
1. С - тип конструкции ступень;
2. 8 - порядок номер типоразмера элемента.
Запрещено вносить произвольные изменение в маркировочные обозначения. Дополнительно можно отражать массу, дату производства и штамп отдела технического контроля.
Особенности производства
С подробным описанием производственного процесса по изготовлению ступеней С 8 (ИИ 01-02) можно знакомиться в Серии ИИ 01-02. Для гарантии высокого качества готовой продукции формовку следует осуществлять в стальных опалубочных формах. Это позволит также обеспечить соответствие требованиям геометрических пропорций, представленных на рабочих чертежах. Главным материалом выступает тяжелый бетон марки М140. Физико-химические показатели морозостойкости и водонепроницаемости подбираются индивидуально. Лицевая поверхность, отмеченная знаком в виде двух стрелочек на рабочих чертежах должна быть цементной и шлифованной.
Армируются конструкции сварными каркасами, выполненными из холоднотянутой проволоки с нормативным сопротивлением 4500 кг/см2. Сборка каркасов должна выполняться в соответствии с требованиями ТУ 73-50. Перед поставкой потребителю конструкции в обязательном порядке направляются на приемосдаточные испытания, результаты которых отражаются в документации, предоставляемой потребителю. Цель проверок - подтверждение соответствия физико-химических свойств элементов требованиям нормативно правовой документации и пригодности к эксплуатации. Не допускается наличие оголенного армирования, жировых пятен, сколов и трещин. Важно осуществлять тщательный контроль на всех стадиях производственного процесса для обеспечения высокого качества готовой продукции.
Транспортировка и хранение
Складирование и транспортировка ступеней С 8 (ИИ 01-02) должны производиться с безукоризненным соблюдение правила норм техники безопасности. Укладка должна осуществляться по схемам, исключающим вероятность возникновения механических повреждений. Для осуществления погрузочно-разгрузочных работ необходимо использовать специализированную технику. Запрещён сброс, навал и перемещение волоком. Все некондиционные элементы отбраковываются и складируются отдельно.
Ступени нижние фризовые С 8 (ИИ 01-02) отзывы


