Размеры:
- Длинна: 1350 мм.
- Ширина: 1200 мм.
- Высота: 770 мм.
- Вес: 1800 кг.
- ГОСТ, Серия: Серия 1.220.1-3м скачать
- Объем бетона: 0,72 м3
- Геометрический объем: 1,2474 м3
- Цена: договорная
Стандарт изготовления изделия: Серия 1.220.1-3м
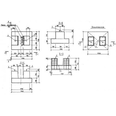
Подколонники ФК 14-12-8-3 (1.220.1-3м) представляют собой унифицированные строительные материалы. По внешнему виду изделия состоят из двух частей, первая часть это плита основания с имеющимися на ней двумя прямоугольниками. Расстояние между прямоугольниками составляет 350 мм. В верхних гранях подколонника размещаются специальные строповочные петли, необходимы для упрощения погрузочно-разгрузочных работ и монтажа конструкций.
Применяются унифицированные подколонники при строительстве многоэтажных жилых домов и общественных зданий с высотой этажа 3,3 м. Конструкции применяются при возведении детских ясельных садов, школ, технических училищ, общественных учреждений и торговых центров. Изделия выступают в качестве основного фундамента и обеспечивают надёжную поддержку и устойчивость размещаем над ними колоннам. Конструкции отличаются высокой прочностью, надежностью и продолжительным эксплуатационным сроком. При проектировании и расчете элементов учитывались требования СНиП II-6-74, а также СНиП II-18-76. Предел огнестойкости конструкции составляет 2 часа.
Маркировочное обозначение
Найти строительные материалы на складах и в номенклатурных рядах позволяет наличие специальных шифров, отражающих ключевые характеристики конструкции. Их важно наносить масляной краской на поверхности изделий для ускорения процесса подбора необходимых строительных материалов. Совокупность знаков ФК 14-12-8-3 (1.220.1-3м) имеет следующую расшифровку:
1. ФК - тип конструкции подколонник;
2. 14 - длина (дм);
3. 12 - ширина (дм);
4. 8 - высота (дм);
5. 3 - размер сечения колонн.
Для предотвращения вероятности возникновения ошибок при выборе строительных материалов важно не допускать внесения произвольных корректировок в маркировочные знаки. Дополнительно следует отражать массу, дату производства и штампы отдела технического контроля.
Особенности производства
Всю подробную информацию по изготовлению подколонников ФК 14-12-8-3 (1.220.1-3м) можно узнать из Серии 1.220.1-3м. По условиям нормативного документа изготовление конструкций должно вестись в спальных опалубочных формах, гарантирующих точные геометрические пропорции конструкциий. Главным материалом изделий должен выступать тяжелый бетон, класса по прочности на сжатие не ниже В25, имеющий морозостойкость F150. Бетон должен отвечать требованиям ГОСТ 25192-2012. При проектировании и подборе материалов учитывается водонепроницаемость, подбираемая индивидуально под конкретные условия эксплуатации.
Для армирования элементов используются специальные сварной сетки, собираемые с помощью контактной точечной сварки. Они изготавливаются из высокопрочной горячекатаной стали классов AI и AIII, отвечающей требованиям ГОСТ 5781-82. Для производства строповочных петель применяется сталь класса AI диаметром 14 мм. Важно выдерживать проектную величину защитного бетонного слоя до поверхности рабочего армирования с целью предотвращения раннего развития коррозионных образований. Не допускается наличие сколов, трещин, ржавых и жировых пятен. Все конструкции проходят обязательные приемосдаточные испытания, результаты которых отражаются в сертификатах, предоставляемых заказчику.
Транспортировка и хранение
Складирование и транспортировка подколонников ФК 14-12-8-3 (1.220.1-3м) должны осуществляться с соблюдением правил по технике безопасности. Укладка должна производиться по специальным схемам, представленным в Серии 1.220.1-3м, гарантирующим отсутствие механических повреждений конструкций. Важно использовать инвентарные подкладочные материалы. Погрузочно-разгрузочные работы должны вестись с использованием специализированной техники. Подъем важно осуществлять исключительно за строповочные петли. Не допускается сброс, навал и перемещение элементов волоком.
Подколонники ФК 14-12-8-3 (1.220.1-3м) отзывы


