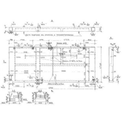
Размеры:
- Длинна: 6700 мм.
- Ширина: 320 мм.
- Высота: 2730 мм.
- Вес: 7550 кг.
- ГОСТ, Серия: Альбом 3РС 19-08 скачать
- Объем бетона: 3,02 м3
- Геометрический объем: 5,8531 м3
- Цена: договорная
Стандарт изготовления изделия: Альбом 3РС 19-08
Плиты входа 3ПВ 7 (Альбом 3РС 19-08) представляют собой прямоугольные конструкции с множеством конструктивных особенностей. Внутренняя поверхность изделий может иметь углубления, закладные элементы и другие характерные отличия, зависящие от расположения строительного материала в каркасе здания.
Используются индустриальные плиты входов при строительстве жилых домов и общественных сооружений серии П3М. Конструкции служат основой для обустройства входа в жилое помещение, а благодаря легкости монтажа в значительные сроки ускоряют процесс возведения объекта. Изделия отвечают требованиям СНиП II-3-79 и относятся к второму классу строительных материалов по теплотехническим характеристикам. При разработке конструкций учитывались требования и рекомендации СНиП 2.03.01-84, а также ГОСТ 11024-84. Предел огнестойкости конструкций 2,5 часа.
Маркировочные обозначения
Для упрощения поиска строительных материалов используются маркировочные знаки. Они отражают главные характеристики конструкций. Совокупность символов 3ПВ 7 (Альбом 3РС 19-08) имеет следующую расшифровку:
1. 3ПВ - тип конструкции - плита входа;
2. 7 - порядковый номер типоразмера.
Запрещается произвольно корректировать маркировочные знаки. Можно отражать дату производства, массу и штамп отдела технического контроля.
Особенности производства
Процесс производства железобетонных плит входа 3ПВ 7 (Альбом 3РС 19-08) регламентирован Альбомом 3РС 19-08. По условиям нормативного документа изготовление конструкций должно осуществляться в стальных формах в горизонтальном положении. Опалубка должна обеспечивать точность геометрических пропорций. В качестве главного сырья принят тяжелый бетон классов В22,5 и В15, имеющий среднюю плотность в размере 2400 кг/м3. Физико-химические показатели бетонной смеси, такие как водонепроницаемость и морозостойкость, должны быть соответственно W2 и F150 (для конструкций с маркой ПВ, остальные F50).
Армирование плит осуществляется из сеток, каркасов и отдельных стержней, собираемых в объемный каркас с помощью специального кондуктора с использованием контактной точечной сварки. Сборка должна производиться в соответствии с требованиями ГОСТ 14098-91 (К1-КТ). Для производства каркасов и сеток используется горячекатаная сталь классов AI и AIII, соответствующая требованиям ГОСТ 5781-82. Дополнительно применяется холоднотянутая проволока класса Вр1 по ГОСТ 6727-80. Проверка качества арматурных составляющих должна осуществляться согласно требованиям ГОСТ 10922-92. Закладные детали производятся из стали марки ВСт3кп2 по ГОСТ 380-88 и стали AII для анкерных креплений. Строповочные петли изготавливаются из стали класса AI марок ВСт3сп2 и ВСт3пс2.
Качество отделки и внешний вид изделий должны отвечать требованиям ГОСТ 13015.0-83. Прошедшие приемосдаточные испытания конструкции снабжаются всей необходимой документацией.
Транспортировка и хранение
Погрузочно-разгрузочные работы плит входов 3ПВ 7 (Альбом 3РС 19-08) должны осуществляться с помощью специализированной техники с захватом за подъемные петли. Обязательно использование подъёмных приспособлений, гарантирующих самобалансирование усилий в грузовых стропах. Важно беречь конструкции от возникновения любых механических повреждений. Складирование следует производить в рабочем положении с использованием деревянных подкладочных материалов, размещаемых в местах, отмеченных на рабочих чертежах в нормативно правовой документации. Запрещен сброс, навал, перемещение волоком.
Плиты входа 3ПВ 7 (Альбом 3РС 19-08) отзывы


