Размеры:
- Длинна: 500 мм.
- Ширина: 400 мм.
- Высота: 63 мм.
- Вес: 30 кг.
- ГОСТ, Серия: Серия 3.006 КР-1 скачать
- Объем бетона: 0,01 м3
- Геометрический объем: 0,0126 м3
- Цена: договорная
Стандарт изготовления изделия: Серия 3.006 КР-1
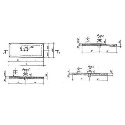
Плита съемная ПС 8 (3.006 КР-1) представляет собой сборную железобетонную прямоугольную плоскую конструкцию, особенность которой состоит в наличии металлической рамы, проходящей по всему периметру плиты. Основные функции данного строительного изделия - перекрытие подпольных каналов, защита санитарно-технических, энергетических и теплотехнических коммуникаций от негативных факторов внешней среды. Применяются на участках, где необходимо осуществлять быстрый и безопасный доступ для проведения технического обслуживания коммуникаций.
Плиты ПС 8 (3.006 КР-1) специально разработаны для проведения капитального ремонта в зданиях и сооружениях в г. Ленинграде, но так же могут использоваться и в других типовых проектах.
Расшифровка маркировки
Железобетонным изделиям в соответствии с рабочими чертежами присваиваются марки, которые имеют вид буквенных и цифровых индексов. Маркировка плиты ПС 8 (3.006 КР-1) расшифровывается как:
1. ПС - плита съемная;
2. 8 - индекс, характеризующий типоразмер.
На всех готовых железобетонных конструкциях должны обозначаться маркировочные надписи, которые позволяют упростить сортировку и содержание на складе готовой продукции и проведения монтажных работ. Надписи наносятся при помощи штампов или трафаретов несмываемой и нестираемой краской и в них должны быть отображены: марка изделия, краткое наименование предприятия производителя, дата выпуска и печать ОТК.
Материалы и производство
Серия 3.006 КР-1 является главным документом, регламентирующим требования и стандарты к изготовлению железобетонных съемных плит ПС 8 (3.006 КР-1). Основной материал таких конструкций - легкий бетон с классом по прочности на сжатие В7,5. Марки бетона по морозостойкости и водонепроницаемости не нормируются. Лицевая поверхность плит имеет слой покрытия, который может быть следующих видов: паркет на мастике, линолеум или плитка ПХВ на мастике, цементно-песчаный раствор.
Совместная работа бетонного массива и металла позволяет добиться изделиям особой прочности и стойкости к появлению трещин. Армируются съемные плиты сетками, которые собираются из проволоки класса ВрI и служат конструкциям надежным остовом. Металлическая рама, обрамляющая плиту, запроектирована из полосовой стали, марка которой при необходимости прописывается в проектной документации. Кроме того в теле плит закладывается петля из стали АI, которая предназначена для проведения погрузо-разгрузочных работ и монтажа.
Готовые конструкции проходят приемочный контроль согласно СНиП III-15-76. В перечень испытаний входят поверка на прочность, жесткость, трещиностойкость, оценка точности геометрических параметров и положения арматурных элементов. Плиты подпольных каналов, успешно прошедшие испытания и достигшие отпускной прочности бетона, поставляются потребителю с документами о качестве установленного образца.
Транспортировка и хранение
Организовывать хранение железобетонных съемных плит ПС 8 (3.006 КР-1) надлежит на заранее оборудованных складах и площадках. Изделия, рассортированные по маркам, укладываются в штабеля, при этом между их слоями обязательно устанавливаются инвентарные прокладки. Все операции, связанные со складированием, подъемом и перевозкой плит, требуется проводить с соблюдением мер, исключающих возможность их повреждения.
При перевозке плит перекрытия подпольных каналов автомобильным, железнодорожным, водным транспортом требуется следовать правилам и нормам погрузки, креплению груза, действующих на этих видах транспорта.
Плиты съемные ПС 8 (3.006 КР-1) отзывы


