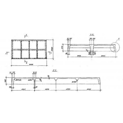
Размеры:
- Длинна: 5550 мм.
- Ширина: 2985 мм.
- Высота: 400 мм.
- Вес: 4600 кг.
- ГОСТ, Серия: Серия ИИ 24-8 скачать
- Объем бетона: 1,84 м3
- Геометрический объем: 6,6267 м3
- Цена: договорная
Стандарт изготовления изделия: Серия ИИ 24-8
Плита ребристая П 6-2 АтV-2 железобетонная плита, разработанная для покрытия многоэтажных производственных зданий. Выпуск изделия регламентирует Серия ИИ 24-8, согласно серии плиты изготавливают с предварительно напряженным армированием, шириной 3 метра. Предусмотрены решения квадратных отверстий в полке плиты, для прокладывания вертикальных коммуникаций. Плита ребристая представляет собой четырехугольник с ребрами жесткости. Данное изделие является высокопрочным, покрытие посредством ребристых плит будет надежным, прочным и долговечным. Применение данного изделия возможно в любой климатической зоне. В конструкции здания плита опирается на полки ригелей, что позволяет распределить нагрузку тем самым получить устойчивый каркас здания.
Расшифровка маркировки
Для условного обозначения ребристой плиты разработано маркировочное обозначение. Маркировка состоит из букв и цифр, разделённых дефисом, каждая цифра несет информацию о характеристиках изделия. Рассмотри маркировку П 6-2 АтV-2:
1. П начальная буква названия элемента;
2. 6 порядковый номер типоразмера;
3. 2 нагрузка;
4. AтV класс напрягаемой стали;
5. 2 категория трещиностойкости.
Для удобства сортирования плит на складе готовой продукции на торце каждого изделия наносят маркировку при помощи краски темного цвета.
Материалы и производство
Для выпуска ребристых плит необходимо использовать специальные формы, в которых есть возможмость устройства резиновых компенсаторов. Такие устройства предохраняют плиты от появления трещин в местах соединения торцевых ребер с продольными ребрами, при передаче предварительного напряжения на бетон и облегчают распалубку плит. Для производства плит используется тяжелый бетон марок 200, 300, 350, 400, 450 и 500. Дополнительные требования к бетонной смеси указывают к конкретному проекту и прописывают на рабочих чертежах. Перед приготовлением бетонной смеси все компоненты необходимо проверить на качество. Для прочности и жесткости плиты армирование выполняется предварительно напряженной арматурой. Напряжение арматуры производится электротермическим или механическим способом. Отпуск арматуры следует производить плавно, без скачков. Класс арматурной стали выбирается исходя из конкретного решения покрытия. Для того чтобы металл плиты был устойчив к коррозии, необходимо проводить мероприятия по защите.
Приемка ребристых конструкций осуществляется партиями плит, изготовленных по одной технологии и из одного и того же материала. Изделия принимаются отделом технического контроля завода - изготовителя. Ребристые плиты испытывают на прочность жесткость и трещиностойкость. Осматривается бетонная поверхность. Проверяются габариты изделия. По итогам приёмо - сдаточных испытаний, плиты снабжаются паспортом качества.
Транспортировка и хранение
Для того чтобы к заказнику поступило не деформированное и неразрушенное изделие, плиты необходимо правильно хранить и перевозить. Хранение происходит на складе готовой продукции. Плиты должны храниться рассортированные по маркам и типоразмерам. Изделия укладывают горизонтально, в невысокие штабеля. Между рядами в штабеле прокладываются деревянные подкладки. Должен обеспечиваться доступ для захвата и подъема каждого изделия. Транспортирование ребристых плит производить с учетом всех мер предосторожности. Запрещается разгружать плиты со сводным их падением, а также не допускается перемещение волоком.
Плиты ребристые П 6-2 АтV-2 отзывы


