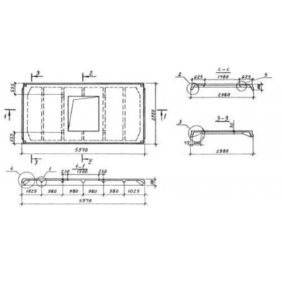
Размеры:
- Длинна: 5970 мм.
- Ширина: 2980 мм.
- Высота: 300 мм.
- Вес: 2280 кг.
- ГОСТ, Серия: Серия 1.465.1-17 скачать
- Объем бетона: 0,91 м3
- Геометрический объем: 5,3372 м3
- Цена: договорная
Стандарт изготовления изделия: Серия 1.465.1-17
Плита ребристая 3ПФ 6-3 АтVск-4 н железобетонный материал, имеет прямоугольную форму с продольными ребрами на плоскости. Плита ребристая принимает участие в покрытии одноэтажных производственных зданий. Могут применяться в отапливаемых и неотапливаемых помещениях. В зданиях с легко сбрасываемой кровлей. В районах с расчетной сейсмичностью 8 и 9 баллов. Предел огнестойкости плиты равен 0,5 часов. Можно использовать в условиях неагрессивной, среднеагрессивной, слабоагрессивной и агрессивной средах газового воздействия.Основная задача данного типа изделий в конструкции здания перераспределение нагрузки на стены и другие элементы. За счет этого достигается достаточная прочность каркаса здания. Выпуск ребристой плиты регламентирует Серия 1.465.1-17, она содержит рабочие чертежи для предварительно напряженных плит размером 3 на 6 метров.
Ребристые плиты подразделяют на несколько типов: с проемами и без. На плиты возможна установка устройств для вентиляции.
Расшифровка маркировки
Готовое изделие маркируется согласно нормативного документа, маркировка представлена в виде цифр и букв, разделяемых дефисами. Расшифровав, маркировку изделия можно узнать: тип плиты, габаритные размеры плиты, несущую способность, а также другие конструкционные особенности. Рассмотрим маркировку плиты 3ПФ 6-3 АтVск-4 н где:
1. 3 типоразмер по ГОСТ 28042-89;
2. ПФ - плита без проема в полке;
3. 6 длина, (в дм);
4. 3 нагрузка;
5. AтVск класс стальной арматуры;
6. 4 - конструктивные особенности;
7. н - дополнительные характеристики, отражающие особые условия применения.
Все маркировочные обозначения следует наносить на торце каждой отпущенной плиты. Проставляется штамп завода производителя, штамп ОТК, дата выпуска, масса изделия. Знаки наносят при помощи черной несмываемой и устойчивой к внешнему воздействию, краски.
Материалы и производство
Процесс производства плит 3ПФ 6-3 АтVск-4 н происходит в заводских условиях. Вид бетона может быть тяжелым или легким. Марка бетона и класс напрягаемой арматуры выбирается исходя из условий, в которых планируется эксплуатация ребристой плиты. Плиты из легкого бетона могут использоваться только в неагрессивной газовой среде. Для того, чтобы изделие, возможно, было закрепить в конструкции здания предусмотрены закладные детали. Расположение закладных и марку, из которой они выполнены, принимают согласно типовому проекту. Весь металл, чтобы не допустить их коррозийного растрескивания должен быть защищены специальным антикоррозийным покрытием.
Готовые ребристые плиты проходят проверку отделом технического контроля завода производителя. Проверяется соответствие геометрических параметров, бетонный слой поверх арматуры, бетонная поверхность. Не допускаются обвалы бетона. Оголение прутов рабочей арматуры. Так же следует проверять изделия на раскрытие трещин. После проверки готовая партия плит получает соответствующий документ технический паспорт.
Транспортировка и хранение
К складированию и перевозке допускаются плиты, бетон которых достиг достаточной прочности. Хранить и транспортировать продукцию нужно в горизонтальном положении, в штабелях. Высота штабеля не должна превышать 2-х метров. Между изделиями и под нижний ряд подкладывают деревянные подкладки шириной 30 мм. Во время проведения всех манипуляций с плитами следует соблюдать технику безопасности. Подъем и монтаж осуществлять при помощи спец. техники. Не допускается разгрузка конструкций со свободным их падением, перемещение изделий волоком. Перевозить плиты можно автомобильным или железнодорожным транспортом. Обязательно фиксировать изделия при перевозке, чтобы не допустить их самопроизвольного движения.
Плиты ребристые 3ПФ 6-3 АтVск-4 н отзывы


