Размеры:
- Длинна: 5970 мм.
- Ширина: 1490 мм.
- Высота: 250 мм.
- Вес: 1530 кг.
- ГОСТ, Серия: Серия 1.065.1-2.94 скачать
- Объем бетона: 0,51 м3
- Геометрический объем: 2,2238 м3
- Цена: договорная
Стандарт изготовления изделия: Серия 1.065.1-2.94
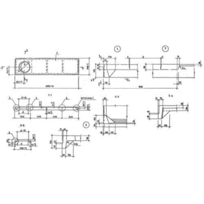
Плиты ребристые 2ПВ 6-5 АIV 10 – это доборные ЖБИ, имеющие П-образную форму и специальное отверстие на основной плоскости под установку вентилятора. Конструктивно платформа по всей длине с боков имеет два продольных ребра жесткости. Плита может иметь различные технологические отверстия, вырезы и углубления на гранях жесткости (используются для обустройства шпонок в смежных элементах). Все особенности отражены техническим проектом. Данные элементы применяют в тех случаях, когда плоские панели не обладают должной несущей способностью.
Ребристые плиты благодаря напряженному каркасу армирования способны воспринимать колоссальные вертикальные нагрузки, а также активно работать в условиях временных, статических и динамических, а также сжимающих и изгибающих нагрузок. Плиты 2ПВ 6-5 АIV 10 – это высокопрочные, надежные и долговечные изделия, которые выпускают согласно самым жестким требованиям действующих стандартов.
1. Варианты маркировки.
Плиты ребристые 2ПВ 6-5 АIV 10 маркируют согласно Серии 1.065.1-2.94 с целью легкой и удобной сортировки готовой продукции. В обозначении указывают ключевые данные, по которым можно подобрать нужные типоразмеры плит перекрытия. Маркировочные знаки пишут разными вариантами. Основные из них:
1. 2ПВ 6-5 АIV-10;
2. 2ПВ 6-5 АIV.10;
3. 2ПВ 6.5 АIV-10;
4. 2ПВ 6.5 АIV.10;
5. 2ПВ 6 5 АIV 10.
2. Основная сфера использования.
Плиты марки 2ПВ 6-5 АIV 10 применяют в строительстве зданий и сооружений различного назначения. Получают из этих изделий плоские и очень прочные потолки. Чаще всего используют элементы для чердачных перекрытий, а также при сооружении одноэтажных общественных зданий и промышленных построек с шагом колонн до 6 м. В жилищном строительстве платформы с ребрами используют очень редко. Это связано с тем, что выступающие вниз балки не позволяют создать ровные потолки.
Плиты 2ПВ 6-5 АIV 10 имеют специальные проемы диаметром 400, 700 и 1000 мм. для установки вентиляторов, что позволяет легко обустроить вентиляционную систему, расположив основные узлы приборов. Ввиду разного диаметра отверстий допускается выполнять стандартную или усиленную промышленную систему вентиляции. Элементы не только воспринимают собственный вес, а также массу вышерасположенных частей здания, в том числе, вес кровли и возможных залежей снега в зимний период, распределяя все напряжения на нижерасположенные несущие конструкции.
3. Обозначение маркировки.
Плиты ребристые 2ПВ 6-5 АIV 10 обозначают по условиям Серии 1.065.1-2.94. Буквенно-цифровая комбинация отражает тип изделия, его основной типоразмер, тип армирования, номер несущей способности и иногда указывают условное пометка легкого бетона буквой "л", также может быть указан ряд характеристик – сейсмическая устойчивость, стойкость к средам агрессивного характера и прочие.
Основные характеристики 2ПВ 6-5 АIV 10:
1. 2 – индекс ширины – 1,5 м.;
2. ПВ – плита ребристая с проемом;
3. 6 – пролет, указывается в м.;
4. 5 – несущая способность;
5. АIV – класс армирования;
6. 10 – диаметр проема для установки вентиляционного оборудования, указывается в дц. (1000 мм.).
Дополнительные характеристики ребристых плит:
Длина = 5970;
Ширина = 1490;
Высота = 250;
Вес = 1530;
Объем бетона = 0,51;
Геометрический объем = 2,2238.
4. Основные характеристики материалов.
Плиты 2ПВ 6-5 АIV 10 изготавливают из различных по плотности бетонов. Эксплуатация может осуществляться в самых разных условиях, поэтому бетон должен отвечать требованиям по стойкости к действию отрицательных температур – морозостойкость марки F50. Устанавливается достаточно низкое водопоглощение бетона влаги – не более 4% или водонепроницаемость марки W4. Если подразумевается использование изделий в химически агрессивной среде, то в состав бетонной смеси вводят специальные присадки, повышающие эксплуатационные показатели материала, а также способствующие также газо- и водонепроницаемости, и повышению стойкости к биологическому загниванию. Армируют ребристые платформы хомутовыми каркасами (высота конструкции составляет 250 мм.), а также отдельными стержнями класса стали А400 и термически упрочненными прутками из стали Ат500 (арматура с предварительным напряжением). Полки армируют цельными сварными сетками. Поверхность бетона покрывается антикоррозионными и гидрофобными составами.
5. Транспортировка и хранение.
Плиты ребристые 2ПВ 6-5 АIV 10 транспортируют спецтранспортом требуемой грузоподъемности. Элементы укладывают в горизонтальное положение, между собой изолируют деревянными подкладками. Погрузо-разгрузочный комплекс выполняется квалифицированным персоналом и только с использованием спецтехники. Не допускается сброс и навал изделий. Хранение осуществляется в ровных стопках по 7 штук в высоту. Слои также прокладывают досками или щитами толщиной 2-3 см.
Плиты ребристые 2ПВ 6-5 АIV 10 отзывы


