Размеры:
- Длинна: 5970 мм.
- Ширина: 1480 мм.
- Высота: 300 мм.
- Вес: 1500 кг.
- ГОСТ, Серия: Шифр М33.15/92 скачать
- Объем бетона: 0,615 м3
- Геометрический объем: 2,6507 м3
- Цена: договорная
Стандарт изготовления изделия: Шифр М33.15/92
Ребристая плита 2ПГ 6-3 ап - это П - образная высокопрочная железобетонная конструкция, особенностью которой является наличие продольных ребер. Основное ее предназначение - это покрытие одноэтажных производственных зданий и сооружений. Такие изделия могут использоваться при условии неагрессивной, слабо- и среднеагрессивной газообразной среды, с сейсмической активностью в области эксплуатации не более 9 баллов.
Ребристые плиты отличаются относительно небольшим весом, при этом обладают высокими показателями прочности, благодаря чему широко распространены на строительном рынке.
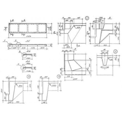
Расшифровка маркировки
Каждому железобетонному изделию согласно с рабочими чертежами назначается марка, состоящая из буквенных и числовых шифров, разделенных дефисом. Марки позволяют узнать об изделии основную зашифрованную в них информацию и облегчают содержание изделий на складе готовой продукции. Из маркировки 2ПГ 6-3 ап видно, что:
1. 2ПГ - ребристая плита;
2. 6 - длина (м);
3. 3 - несущая способность;
4. а - продольные ребра армируются каркасами с двумя продольными стержнями;
5. п - пониженная проницаемость бетона (для эксплуатации в среднеагрессивной газовой среде).
Марка плиты, наименование производителя, дата выпуска, отпускной вес - основные сведения, которые должны быть указаны на боковой стороне всех плит, поставляемых потребителю.
Материалы и производство
Ребристые плиты 2ПГ 6-3 ап регламентировано изготавливать с соблюдением всех требований и рекомендаций, указанных в Шифре М.33.15/92. При выпуске данных изделий важны соблюдение габаритных параметров и ровная поверхность, этому способствует стальная форма, которая перед очередным циклом формования должна быть очищена и обработана специальным составом, препятствующим сцеплению бетонной массы с металлической поверхностью. Основной материал плит - тяжелый бетон класса В20, В22,5. В зависимости от степени агрессивности газовой среды, проектной организацией принимается бетон с нормальной или пониженной проницаемостью.
Особенность изготовления плит по данному нормативному документу - это отсутствие предварительного напряжения продольных ребер, они армируются каркасами с одним нижним продольным стержнем или каркасами с двумя нижними стержнями меньшего диаметра, верхний из которых укорочен. Армирование полки плит выполняется сварными сетками. В качестве арматуры запроектированы сталь класса АIII и проволока ВрI. В теле плит предусмотрены закладные детали из стали АI, АIII, предназначенные для прочного соединения с прочими строительными элементами.
Готовые 2ПГ 6-3 ап принимаются по результатам входного, операционного и приемочного контроля, включающие в себя испытания на прочность, жесткость, трещиностойкость, по показателям точности линейных параметров, положения арматурных элементов.
Транспортировка и хранение
Железобетонные ребристые плиты 2ПГ 6-3 ап, принятые отделом технического контроля завода-изготовителя, требуется укладывать в горизонтальном положении на заранее обустроенных складских площадках. При складировании и перевозке обязательно должны применяться инвентарные прокладки, предотвращающие изделия от смещения и разрушения.
Погрузочные и разгрузочные работы надлежит осуществлять транспортом, оборудованным захватными устройствами за предусмотренные для этого петли в плите.
При транспортировании ребристым плитам должно гарантироваться надежное фиксирование, исключающее их сдвиг, трение с кузовом транспорта и между изделиями, а так же опрокидывание.
Плиты ребристые 2ПГ 6-3 ап отзывы


