Размеры:
- Длинна: 5550 мм.
- Ширина: 2985 мм.
- Высота: 400 мм.
- Вес: 4850 кг.
- ГОСТ, Серия: Серия 1.442.1-1.87 скачать
- Объем бетона: 1,94 м3
- Геометрический объем: 6,6267 м3
- Цена: договорная
Стандарт изготовления изделия: Серия 1.442.1-1.87
Плиты ребристые 1П 1-5 АтVт в (1.442.1-1.87) это тот тип железобетонных изделий, который обеспечивает надежность перекрытий и покрытий колон в промышленных помещениях. Конструкция данных изделий состоит из полки, продольных ребер для опирания на ригель и поперечных ребер. Также в теле изделия могут иметься отверстия для проведения вентиляции. Плиты используются в качестве рядовых или межколонных перекрытий. Они крепятся в проектное положение с помощью сварки металлических изделий для соединения, предварительно заложенных в усиливающий каркас. Основная задача данных материалов – восприятие высоких нагрузок постоянного или переменного характера.
1. Варианты маркировки
Ход маркировки железобетонных изделий определяет ГОСТ 23009-78. Очередность расположения групп обозначений может варьироваться и видоизменятся. Все виды написания являются одинаково верными. Они представлены следующими вариантами:
1. 1П 1-5 АтVск п;
2. 1П 1-5 АтV;
3. 1П 1-5 АIIIв;
4. 1П 1-5 АIIIвтс;
5. 1П 1-5 АтVIт;
6. 1П 1-5 АтVт.
2. Основная сфера применения
Ребристые плиты 1П 1-5 АтVт в (1.442.1-1.87) пользуются довольно большим спросом за счет своей универсальности. В основном они применяются при строительстве промышленного типа, когда речь идет о возведении одноэтажных зданий заводского или складского характера. Они могут быть использованы в зданиях с отоплением или без и даже на открытом воздухе. Им не страшны морозы вплоть до -40 градусов, как и постоянное воздействие высоких температур до +50 градусов. Также данные материалы могут выдерживать сейсмическую активность до 9 баллов по шкале Рихтера, а их предел огнестойкости составляет 0,75 часа. Плитам перекрытий Серии 1.442.1-1.87 не страшны ни агрессивная газовая среда, ни динамичные нагрузки. Для достижения максимальной надежности изделия крепят к ригелям в 4х точках, а также тщательно замоноличивают стыки с колонами.
3. Обозначение маркировка изделия
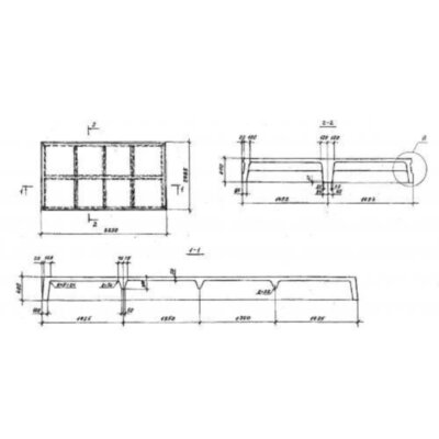
Маркировочные обозначения применяются при составлении технической документации и наносятся на поверхность ЖБ-изделий. Они отображают главные технические характеристики ребристых плит перекрытия и состоят из буквенно-цифровых символов, последовательно распределенных по группам. Расшифровка марки плиты 1П 1-5 АтVт в (1.442.1-1.87) такая:
1. 1 – порядковый номер типоразмера опалубки;
2. П – плита перекрытия и покрытия;
3. 1 – типоразмер плиты;
4. 5 – несущая способность изделия;
5. АтVв – класс напрягаемой арматуры;
6. п – плита с повышенной плотностью бетона (т - тяжелый).
Также важно учитывать дополнительные габаритные характеристики, которые могут повлиять на Ваш выбор определенной марки плиты:
Длина = 5550;
Ширина = 2985;
Высота = 400;
Вес = 4850;
Объем бетона = 1,94;
Геометрический объем = 6,6267.
4. Изготовление и основные характеристики
Изготовление железобетонных ребристых плит перекрытий высотой 400 мм регламентируется измененными выпусками действующей Серии 1.442.1-1.87. Данный регламент является усовершенствованным и более рациональным вариантом Серии ИИ24-10, 1.442.1-1 и ИИ24-9. Документ содержит рабочие чертежи, отсылки к прочим нормативам, контрольные таблицы для проведения приемо-сдаточных испытаний и правила изготовления строительных материалов данного типа. При их производстве используются разные сорта бетона. В зависимости от условий установки и предполагаемой нагрузки, которую должны будут выдерживать плиты, это могут быть тяжелые классы бетона марок, начиная от М200 и заканчивая М500, или пористые бетоны на заполнителях марок от М200 до М400. По ГОСТ 10884-81 для усиления таких изделий в ход идут разные марки армирования: стержневая напряженная механическим или электротермическим методом сталь класса Ат-У и Ат-УСК или за неимением оной А-ІІІв, а также стальные сетки и сварные каркасы. В теле изделий предусмотрены специальные отверстия для дефлекторов и зонтов, кроме того на них могут устанавливаться центробежные или осевые вентиляторы (по одному на каждую плиту). Все этапы производства полностью отвечают действующим стандартам, что позволяет выпускать прочные трещиностойкие изделия с высокими эксплуатационными показателями.
5. Транспортировка и хранение
Перевозка и хранения плит 1П 1-5 АтVт в (1.442.1-1.87) также подчиняются строгим правилам безопасности. Складируют их штабелями с обязательным применением изоляционных материалов (деревянных досок, толщина которых превышает высоту строповочных петель). При погрузке в ход идет специальная подъемная техника. Основная задача заключается в максимально бережном перемещении плит в кузов и равномерном распределении веса между четырьмя петлями в теле изделия. Хранение и перевозка предполагают постоянное пребывание ребристых плит в рабочем горизонтальном положении. Надежная фиксация и соблюдение всех официальных требований позволяют уберечь ЖБ-продукцию от любых механических повреждений.
Плиты ребристые 1П 1-5 АтVт в (1.442.1-1.87) отзывы


