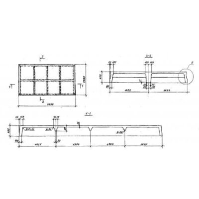
Размеры:
- Длинна: 5550 мм.
- Ширина: 2985 мм.
- Высота: 400 мм.
- Вес: 4730 кг.
- ГОСТ, Серия: ГОСТ 27215-87 скачать
- Объем бетона: 1,89 м3
- Геометрический объем: 6,6267 м3
- Цена: договорная
Стандарт изготовления изделия: ГОСТ 27215-87
Плита ребристая 1П 1-1 АтVIт (ГОСТ 27215-87) представляет собой тяжёлый строительный элемент из железобетона, имеющий П-образное сечение. Основной функцией плит является распределение нагрузки этажа здания на несущие конструкции. Это позволяет снизить затрату используемых материалов и усилить безопасность строения. Применяют данные элементы при возведении многоэтажных построек различных назначений при шаге опорных частей не более 6 метров. В случае использования при строительстве сооружений без отопления, температура снаружи не может быть ниже сорока градусов, а постоянная технологическая не выше пятидесяти. Область применения также ограничивается такими факторами, как агрессивность воздействия природных сред не выше средней и сейсмичность в пределах 9 баллов.
Расшифровка маркировки
Ребристые плиты 1П 1-1 АтVIт (ГОСТ 27215-87) имеют типичную для всех железобетонных изделий буквенно-цифровую шифровку, необходимую для сортировки элементов в зависимости от их типа, параметров, класса арматурного скелета и наличия дополнительных характеристик. Данный шифр 1П 1-1 АтVIт (ГОСТ 27215-87) означает следующее:
1. 1П - плита с опорными элементами для полок ригелей;
2. 1 - типоразмер;
3. 1 - сортировка по несущей способности;
4. AтVIт - класс напрягаемой арматуры корпуса;
5. п - пониженная проницаемость бетона.
Знаки маркировки наносятся с торца или продольной части ребра изделия.
Наименование также отмечается на арматурных и закладных изделиях, поставляемых непосредственно вместе со стройматериалом.
Основные характеристики и изготовление
При производстве 1П 1-1 АтVIт (ГОСТ 27215-87) используется качественный тяжелый бетон марки на сжатие М350, а его средняя прочность варьируется в пределах 2500 кг/м3. Армирование осуществляется с помощью термохимически обработанной стали класса A-IV, Aт-V, Aт-Vcк. Соблюдение стандартов исходных материалов позволяет обеспечить изделию требуемую прочность, долговечность, защиту от химических разрушений и воздействий природных сред. Эти стандарты регулируются ГОСТ 27215-87. Делают ребристые плиты схожим со всеми железобетонными изделиями способом. На заводах в формы для плит укладывают заранее сваренный и обработанный скелет из арматуры. Затем подаётся бетонная жидкость. После чего специальными устройствами - вибраторами проводят утрамбовку и шлифовку бетона. Далее, формы с бетоном отправляются на просушивание в течение суток для дальнейшего складирования на специализированных площадках. В среднем на одну такую плиту расходуется 0,9 м3 бетона. Завершающим этапом производства является проверка готового сырья. Проводят различные испытания на устойчивость к механическим повреждениями, на соответствие необходимой прочности, жёсткости, стойкости к холоду и точности заявленных в сопутствующей документации метрических параметров. Также важным параметром является расстояние от бетонного слоя до арматуры, соответствующее технике безопасности.
Хранение и транспортировка
Размещение плит ребристых 1П 1-1 АтVIт (ГОСТ 27215-87) происходит в специальных помещениях в штабелях не выше 2.5 м. в лежачем положении, при условии видимости маркировочных надписей. Между изделиями содержатся инвентарные разделяющие, сохраняющие неподвижность конструкций и исключающие их трение. Толщина прокладок 30мм и более. Для транспортировки штабели с плитами с помощью крана устанавливают на грузовой транспорт, распределяя вес равномерно, относительно оси его колёс. Также применяют специальное закрепляющее оборудование, препятствующее повреждениям изделий или их смещению. Допускаются к перевозке только конструкции, достигшие требуемой прочности бетона на сжатие в 70 процентов от марки. Поставка партии осуществляется строго вместе со всей необходимой документацией на каждый товар.
Плиты ребристые 1П 1-1 АтVIт (ГОСТ 27215-87) отзывы


