Размеры:
- Длинна: 2100 мм.
- Ширина: 150 мм.
- Высота: 45 мм.
- Вес: 35 кг.
- ГОСТ, Серия: Серия ИИ 03-02 скачать
- Объем бетона: 0,014 м3
- Геометрический объем: 0,0142 м3
- Цена: договорная
Стандарт изготовления изделия: Серия ИИ 03-02
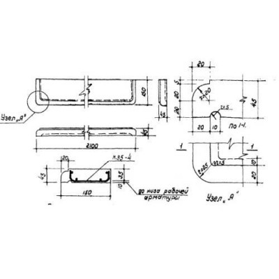
Плиты подоконные БП 4-21 - высокопрочные индустриальные железобетонные изделия. По внешнему виду элемент представляет собой прямоугольную конструкцию, имеющую на одной из продольных граней закругленный скос, радиусом 20 мм. Под скосом расположено небольшое углубление величиной в 1 см с радиусом 5 мм. Изделие имеет толщину, равную 45 мм.
Унифицированные подоконные плиты широко применяются в гражданском строительстве при возведении жилых домов и общественных зданий. Они размещаются на оконных проемах и позволяют сформировать и обустроить подоконник, закрыв тем самым стеновые панели и кирпичную кладку. Использование данного вида строительных материалов в значительной степени продлевает срок службы сооружений, а также придает дополнительную эстетическую привлекательность. Использование подоконников упрощает отделочные работы, избавляет от необходимости зачищать оконный периметр, а также ускоряет процесс возведения сооружений. При разработке конструкции учитывались требования и рекомендации ТУ 123-55.
Маркировочное обозначение
С целью ускорить процесс сортировки при нахождении требуемых строительных материалов на складских территориях были разработаны специальные маркировочные знаки. Их ключевой целью является отражение конструктивных особенностей изделия. Совокупность символов БП 4-21 имеет следующую расшифровку:
1. БП - подоконная плита;
2. 4 - индекс характеризующий ширину;
3. 21 - длина изделия (дм).
Не допускается внесение посторонних изменений в маркировочные знаки. Вмешательство может привести к возникновению ошибок при подборе строительных конструкций.
Особенности производства
Подробный процесс производства, требования к материалам и последовательность действий описаны в Серии ИИ 03-02. По условиям нормативного документа изготовление железобетонных подоконных плит БП 4-21 должно осуществляться с применением тяжелого бетона марки М200 по прочности на сжатие. Величина защитного бетонного слоя до поверхности рабочего армирования должна составлять минимум 10 мм. Соблюдение данного показателя позволяют обеспечить защиту арматурных каркасов, расположенных внутри конструкции, от раннего развития коррозионных образований. Производство арматурных сеток и каркасов принято осуществляться из холоднотянутой проволоки диаметром 5 мм с пределом текучести 4500 кг/см2, а также круглой стали 6, 8 и 12 мм диаметром, марки Ст3 с пределом текучести 2100 кг/см2. Сталь должна отвечать требованиям ГОСТ 6727-53 и ГОСТ 2590-51. Сварку каркасов необходимо выполнять в соответствии ТУ 117-55 и ТУ 73-56.
На лицевой поверхности изделий должна быть в обязательном порядке выполнена мозаичная отделка толщиной не менее 10 мм. Достигшие отпускной прочности строительные конструкции в последующем направляются на приемосдаточные испытания, по итогам которых выдаются сертификаты соответствия, подтверждающие эксплуатационную пригодность конструкций.
Транспортировка и хранение
С подробными условиями транспортировки, допуска, приемки, хранения и методами испытаний можно ознакомиться в ГОСТ 6785-53. Конструкции рекомендуется укладывать в штабеля с обязательно использование деревянных подкладочных материалов. Высоту штабеля железобетонных подоконных плит БП 4-21 рекомендовано подбирать исходя из условий техники безопасности. Важно надежно фиксировать конструкции до начала движения транспортных средств. Изделия необходимо беречь от возникновения любых механических повреждений. Не допускается сброс и перемещение волоком.
Плиты подоконные БП 4-21 отзывы


