Размеры:
- Длинна: 3500 мм.
- Ширина: 1500 мм.
- Высота: 250 мм.
- Вес: 3280 кг.
- ГОСТ, Серия: Серия 3.407.1-148 скачать
- Объем бетона: 1,31 м3
- Геометрический объем: 1,3125 м3
- Цена: договорная
Стандарт изготовления изделия: Серия 3.407.1-148
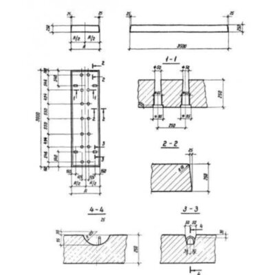
Плиты ПФ 35-15 (3.407.1-148) унифицированные железобетонные изделия, имеющие прямоугольную форму. Торцевые грани по всему периметру конструкции имеют небольшой скос, придающий элементу в поперечном сечении вид трапеции. В центральной части конструкции вдоль всей длины располагаются отверстия, предназначенные для пропуска анкерных креплений для фиксации будущей подстанции.
Индустриальные плиты являются частью фундаментов под трансформаторы напряжением от 100 до 200 кВ. Элементы являются надежной опорой для подстанций, препятствуя соприкосновению металлических частей сооружения с грунтом, и продлевая его эксплуатационный срок. Изделия предназначены для использования в слабо агрессивных средах, а также в районах с температурным режимом воздуха ниже минус 40 градусов. При разработке конструкций учитывались требования и рекомендации СНиП 2.03.01-84.
Маркировочные обозначения
С целью упростить поиск требуемых строительных конструкций были разработаны проектными институтами специальные маркировочные обозначения. Они состоят из цифр и букв и отражают ключевые характеристики элементов. Совокупность символов ПФ 35-15 (3.407.1-148) имеет следующее значение:
1. ПФ - плита фундаментная;
2. 35 - длина (дм);
3. 15 - ширина (дм).
Запрещено вносить произвольные изменения в маркировочные знаки, так как это может привести к ошибкам при подборе необходимых строительных конструкций.
Особенности производства
С подробным процессом производства фундаментных плит ПФ 35-15 (3.407.1-148) можно ознакомиться в нормативном документе Серии 3.407.1-148. В регламенте подробно прописаны требования к материалам. В качестве ключевого сырья применяется тяжёлый бетон класса по прочности на сжатие В25. Величину показателей морозостойкости и водонепроницаемости необходимо подбирать исходя из климатических особенностей и условий в регионе строительства. Следует в обязательном порядке обеспечить необходимую величину защитного бетонного слоя до поверхности рабочего армирования, которая указана на рабочих чертежах нормативно-правовой документации.
Для армирования конструкций используются каркасы и сетки, выполненные из высокопрочной стали периодического профиля класса AIII по ГОСТ 5781-82 с диаметром стержней 12 и 14 мм. Хомуты выполняются из гладкой горячекатаная арматура класса AI. Для производства монтажных петель рекомендуется применение стали класса AI марки ВСт3сп2. Для продления эксплуатационного срока необходимо обеспечить надежную противокоррозионную защиту металлических частей, поэтому следует использовать специальные покрытия. После достижения отпускной прочности обязательно прохождение приемосдаточных испытаний, по итогам которых пригодные к использованию элементы снабжаются необходимым пакетом документов, подтверждающих качество.
Транспортировка и хранение
Складирование и перевозку фундаментных плит ПФ 35-15 (3.407.1-148) следует осуществлять с применением специализированной техники и с безукоризненным соблюдением всех правил и норм по технике безопасности. Укладка должна осуществляться в горизонтальные штабеля с обязательным применением инвентарных подкладочных материалов, препятствующих возникновению трения между конструкциями в процессе передвижения транспортного состава и при хранении. Важно не допустить возникновение смещений и боя, следует обеспечить надежную фиксацию. Высота штабеля должна быть не более 2м. Важно беречь изделия от возникновения любых механических повреждений, способствующих к дальнейшей непригодности элементов к использованию в строительстве.
Плиты ПФ 35-15 (3.407.1-148) отзывы


