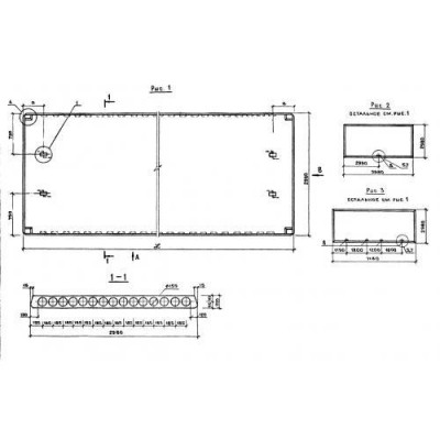
Размеры:
- Длинна: 5980 мм.
- Ширина: 2980 мм.
- Высота: 220 мм.
- Вес: 5322 кг.
- ГОСТ, Серия: Серия 1.090.1-1 скачать
- Объем бетона: 2,128 м3
- Геометрический объем: 3,9205 м3
- Цена: договорная
Стандарт изготовления изделия: Серия 1.090.1-1
Плита перекрытия многопустотная ПК 60-30-8 АтVт (1.090.1-1) является изделием, созданным на основе армированного бетона. Конструкция имеет простую прямоугольную форму, однако внутри нее располагаются пустоты, проходящие вдоль всей плиты. Стандартным предназначением многопустотных строительных элементов при строительстве зданий и сооружений является образование перекрытий на стыке этажей. Особые технические характеристики плит, такие как тяжелый бетон, напрягаемая арматура, огнестойкость не ниже 0,95 часа, позволяют применять изделия повсеместно. Все же регламент изготовления - Серия 1.090.1-1, рекомендует применение ПК 60-30-8 АтVт (1.090.1-1) при строительстве крупных панельных общественных зданий и вспомогательных сооружений промышленного назначения.
Расшифровка маркировки
Маркировочная символика плиты принята из букв и цифр, объединенных в группы. Первая группа определяет тип конструкции, далее прописаны цифры, обозначающие округленные размеры изделия. Вторая часть марки включает в себя такие данные как: величина нагрузки в сотнях килограммов на метр квадратный, класс стали применяемой арматуры, а также может быть указан тип бетона. Так при расшифровке ПК 60-30-8 АтVт (1.090.1-1) наблюдается следующее:
1. ПК - плита многопустотная;
2. 60 - длина (в дм);
3. 30 - ширина (в дм);
4. 8 - нагрузка;
5. АтV - класс напрягаемой арматуры;
6. т - тяжелый бетон.
Маркировку продукции можно увидеть на готовом железобетонном изделии, на торцевой его части. Также там помимо марки, несмываемой краской, прописаны дата изготовления, масса плиты в килограммах, товарный символ производителя и штамп ОТК.
Материалы и производство
Изготавливаются пустотные прямоугольные изделия ПК 60-30-8 АтVт (1.090.1-1) по агрегатно-поточной технологии на основании чертежей и пометок из Серии 1.090.1-1. Основной применяемый универсальный материал - это тяжелый бетон марки по прочности на сжатие М200,300, ингредиенты которого рационально подобраны и качественно уплотнены. Марки бетона по водонепроницаемости и морозостойкости определяются автором конкретных строительных проектов, здесь учитываются особенности климатических условий места будущей строительной площадки, а также режим эксплуатации.
Так как применение плиты предполагается в условиях, действующих на нее вертикальных и горизонтальных нагрузок, помимо применяемого плотного бетона, конструкция упрочняется стальным каркасом. В качестве предварительно-напрягаемой арматуры в плитах перекрытия используется сталь классов АтV и АV.Предварительное напряжение арматуры осуществляется электротермическим способом или механическим способом натяжения (редко). Материалом для сеток и каркасов выступает холоднотянутая проволока Вр-I и стержни из горячекатаной стали класса А-III. Для упрощения процессов транспортировки и монтажа в тело ПК 60-30-8 АтVт (1.090.1-1) помещены монтажные петли из стали класса А-I.
Результатом производственного процесса является оценка качества готовых изделий, которая осуществляется в виде контрольных испытаний на прочность и трещиностойкость в соответствии определенного регламента.
Транспортировка и хранение
Основные манипулирования над плитами, такие как складирование и перемещение должны происходить в рабочем расположении (горизонтальном), с использованием специального инвентаря - деревянных подкладок. Подкладки, в свою очередь, располагаются в пределах участков, равных трёмстам миллиметрам, от боковых граней плит. Подъем конструкций с помощью специальной техники должен осуществляться таким образом, чтобы нагрузка от собственной массы строительного элемента была распределена одинаково на все монтажные петли. Хранение ПК 60-30-8 АтVт (1.090.1-1) предусмотрено в рассортированном виде.
Плиты перекрытия многопустотные ПК 60-30-8 АтVт (1.090.1-1) отзывы


