Размеры:
- Длинна: 11980 мм.
- Ширина: 1195 мм.
- Высота: 300 мм.
- Вес: 5330 кг.
- ГОСТ, Серия: Серия ИЖ 745-01 скачать
- Объем бетона: 2,13 м3
- Геометрический объем: 4,2948 м3
- Цена: договорная
Стандарт изготовления изделия: Серия ИЖ 745-01
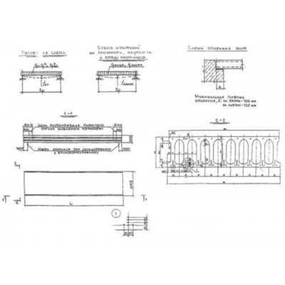
Плита перекрытия многопустотная 3ПБ 120-12-8 представляет собой прямоугольную предварительно напряженную плиту, особенностью которой являются овальные отверстия. Запроектированы плиты толщиной 300 мм и шириной 1195 мм. Такие строительные элементы отличаются гладкими поверхностями и не требуют дополнительной обработки, сразу готовы под декоративную отделку. Данные конструкции предназначены для формирования межэтажного пространства, так же могут служить как лоджии и балконы. Широко используются изделия в строительстве частных домов, жилых и промышленных сооружениях, стены которых выполнены из кирпича или крупных блоков. Регламентировано использование данных конструкций в районах с обычными условиями строительства. Благодаря тому, что плиты очень хорошо сохраняют тепло, имеют высокие показатели шумоизоляции, легкость в установке и являются высокопрочными конструкциями, они прочно заняли лидирующее место на строительном рынке.
Расшифровка маркировки
Все железобетонные плиты имеют условное обозначение марками. Марки назначаются в соответствии с рабочими чертежами и состоят из цифробуквенных кодов. Рассмотрим подробнее маркировку 3ПБ 120-12-8, где:
1. 3 - высота,
2. ПБ - плита перекрытия безопалубочного формирования,
3. 120 - длина,
4. 12 - ширина,
5. 8 - расчетная нагрузка.
Линейные размеры конструкции указываются в дециметрах.
Несмываемой краской на верхней части или на боковой грани плиты должны быть нанесены основные и информационные маркировочные обозначения, а именно: марка изделия, сокращенное наименование производителя, масса, дата выпуска, печать ОТК.
Материалы и производство
Стандарты к производству железобетонных многопустотных плит перекрытия 3ПБ 120-12-8 прописаны в Серии ИЖ 745-01. Плиты изготавливаются стендовым безопалубочным методом, преимущества такого способа: низкая себестоимость и возможность изготовления плит с градацией по длине 0,1 м.
Производятся плиты из тяжелого бетона класса В40. Разрезку монолита на изделия необходимо производить строго при достижении бетоном семидесяти процентов от проектной прочности. Чтобы не допустить потерю анкировки арматуры у обоих концов монолита, следует выполнять обрезку концов длиной не меньше пятидесяти сантиметров.
Армирование плит регламентировано предварительно напряженной арматурой. В качестве арматуры запроектирована проволока класса ВрII. Предварительное напряжение позволяет существенно увеличить несущую способность конструкций, экономит стальную арматуру за счет этого снижается вес и себестоимость. В некоторых изделиях не обязательно устанавливать верхнюю арматуру. По большей части конструкции без верхней арматуры употребляются в каркасных сооружениях и в малоэтажном строительстве с шарнирной схемой опирания.
Готовые плиты перекрытия подвергаются контрольным испытаниям на жесткость и трещиностойкость, прочность. На поверхностях изделий не допускаются трещины, скосы, наплывы бетона.
Хранение и транспортировка
Готовые железобетонные многопустотные плиты перекрытия 3ПБ 120-12-8 следует хранить в рабочем (горизонтальном) положении на специально оборудованных складах. Необходимо конструкции укладывать штабелями с высотой не более 2,5 метров во избежание разрушения нижних плит. Между слоями конструкций так же должны укладываться деревянные прокладки толщиной три сантиметра. Подъем плит должен проводиться спецтранспортом при помощи специальных траверс, захватных устройств.
При перевозке к месту монтажа необходимо обеспечивать надежную фиксацию конструкций внутри кузова транспорта, исключающую их опрокидывание, сдвиг, взаимное трение.
Плиты перекрытия многопустотные 3ПБ 120-12-8 отзывы


