Описание
Отзывы (0)
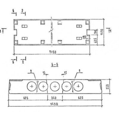
Плиты перекрытий многопустотные П 72-15-6 АтV-1 с9
Размеры:
- Длинна: 7180 мм.
- Ширина: 1490 мм.
- Высота: 220 мм.
- Вес: 4100 кг.
- ГОСТ, Серия: Шифр 89-1227 скачать
- Объем бетона: 1,64 м3
- Геометрический объем: 2,3536 м3
- Цена: договорная
Плиты перекрытий многопустотные П 72-15-6 АтV-1 с9 отзывы


