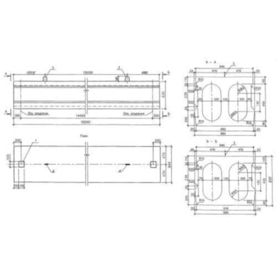
Размеры:
- Длинна: 15000 мм.
- Ширина: 990 мм.
- Высота: 630 мм.
- Вес: 12900 кг.
- ГОСТ, Серия: Серия 3.503.1-108 скачать
- Объем бетона: 5,17 м3
- Геометрический объем: 9,3555 м3
- Цена: договорная
Стандарт изготовления изделия: Серия 3.503.1-108
Плиты П 15 тАV-1 – это элементы пролетного мостового строения, на которые возложена довольно большая ответственность восприятия нагрузок от дорожного полотна, транспорта и пешеходов. Для максимальной эффективности и надежности конструкции такие материалы обязательно должны быть одновременно прочными и легкими. Совместить эти два требования позволила пустотная конструкция пролетных плит: изделия, запроектированные типовым проектом Серия 3.503.1-108, представляют собой массивные блоки с внушительной длиной, снабженные продольными сквозными отверстиями вытянутой закругленной формы. Помимо облегчения установки и придания ей дополнительной жесткости эти отверстия также могут служить и для проведения различных городских коммуникаций.
1. Варианты маркировки
В сфере проектирования и изготовления стандартизированных сборных железобетонных конструкций, коими и являются пролетные строения, существует одна общая система маркировки. Согласно с ней шифр пустотных плит типа П может писаться несколькими одинаково широко применяемыми способами:
1. П 15 тАV-1;
2. П 15 тАV-1 к.
2. Основная сфера применения
Железобетонные пролетные строения – это несущие конструкции сборного типа, состоящие из ферм, опорных частей и плит для поддержания мостового полотна. Плиты П 15 тАV-1 применяются при строительстве пешеходных, автомобильных и даже железнодорожных мостов, а повышенная прочность и не менее впечатляющие эксплуатационные характеристики позволяют устанавливать их в любых климатических районах России, включая даже самые суровые. Плиты отлично противостоят любым атмосферным воздействиям, обладают стойкостью к коррозийным процессам, не боятся пониженных температур. Они особо хороши тем, что могут применяться в районах с сильной сейсмической активностью в 7, 8 и даже 9 баллов по шкале Рихтера.
3. Обозначения маркировки изделия
Маркировка готовой железобетонной продукции – важный этап выпуска любого стройматериала. Типовый проект Серия 3.503.1-108 предполагает следующий порядок маркирования пустотных плит для пролетных строений:
1. П – пустотная плита;
2. 15 – длина плиты в м.;
3. АV – класс арматуры;
4. т =1,2,3 – температурные зоны;
5. 1 - номер исполнения пустотной плиты, без механической зачистки стыков напрягаемой арматуры.
Данный шифр присваивается элементам пролетного строения, обладающим такими размерными характеристиками:
Длина = 15000;
Ширина = 990;
Высота = 630;
Вес = 12900;
Объем бетона = 5,17;
Геометрический объем = 9,3555.
При выпуске готовых партий маркироваться черной стойкой к стираниям краской должно минимум 10% всех изделий. Это крайне важно для удобства при сортировке и быстрой идентификации того или иного изделия.
4. Изготовление и основные характеристики
Для изготовления плит пролетных строений согласно типовому проекту Серия 3.503.1-108 применяется высокопрочный тяжелый бетон класса В35. Районы установки подобных элементов делятся на несколько температурных групп, и в зависимости от группы марка морозостойкости изделия может составлять F200 или F300. Постоянное воздействие осадков вызывает необходимость в повышенной стойкости к влаге. Именно поэтому марка водонепроницаемости пустотных плит П 15 тАV-1 принимается не менее W6. Одной из важнейших стадий изготовления подобных изделий является армирование. Для усиления конструкции используются сварные и вязальные сетки из усиленных прутков стали класса А-І, А-ІІ и А-ІІІ (А-ІV и А-V), а также отдельные стальные канаты К7 диаметром в 15 мм.
Сам производственный процесс должен осуществляться в оборудованных по всем правилам заводских условиях. Изготовление протекает в режиме ускоренной тепловой обработки при температурах свыше 60 градусов. При этом используются специальные стенды с канатами и стержнями, предварительно натягиваемыми на упоры. Такая технология позволяет гарантировать максимальную прочность изделия, его полное соответствие проектным размерным показателям и однородность поверхности, отсутствие усадочных трещин, наплывов, сколов, а также прочих неприемлемых изъянов. Все это в обязательном порядке проверяется в ходе заключительных приемо-сдаточных испытаний. Лишь успешно прошедшие такую приемку строительные материалы могут быть допущены к отправке заказчику и последующей эксплуатации.
5. Транспортировка и хранение
Хранятся и перевозятся плиты П 15 тАV-1 также, как и прочие материалы подобного рода – в рабочем горизонтальном положении с обязательным применением прокладочных материалов между слоями штабелей. Для транспортировки таких массивных железобетонных элементов требуется официальное разрешение, а погрузочные работы осуществляются исключительно с помощью специальной подъемной техники. Обезопасить стройматериалы на время перевозки позволяет их тщательное закрепление в кузове грузового транспорта.
Плиты П 15 тАV-1 отзывы


