Размеры:
- Длинна: 2980 мм.
- Ширина: 1195 мм.
- Высота: 220 мм.
- Вес: 1105 кг.
- ГОСТ, Серия: Серия ИЖ 568-04/д скачать
- Объем бетона: 0,442 м3
- Геометрический объем: 0,7834 м3
- Цена: договорная
Стандарт изготовления изделия: Серия ИЖ 568-04/д
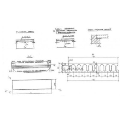
Плита многопустотная ПБ 30-12-12 (ИЖ568-04/д) - это прямоугольное высокопрочное железобетонное изделие. В теле плиты имеются многочисленные овальные отверстия, проходящие по всей длине конструкции, которые позволяют уменьшить вес плиты, увеличить ее теплосохраняющие свойства и с легкостью провести проводку и другие инженерные коммуникации. Основное предназначение плит данного типа - это организация перекрытия на стыке этажей. В целом, многопустотные изделия можно применять в постройках различного типа, поскольку они являются универсальными конструкциями. Плиты незаменимы при отделении подвалов от основных корпусов, выведении этажей, строительстве гаражей, крыш, и многих других сооружений. Разработанные по Серии ИЖ 568-04/д многопустотные конструкции, предназначены для использования в зданиях промышленного, административного и жилого назначения, с несущими кирпичными или крупноблочными стенами, а также в каркасах здания, возводимых в обычных условиях строительства.
Расшифровка маркировки изделия
Маркировочные символы присваиваются каждой железобетонной конструкции, в том числе и плитам, в индивидуальном порядке. Их марка состоит из буквенно - цифрового индекса, каждая группа которого содержит в себе сжатую информацию об изделии. Так, если рассматривать расшифровку ПБ 30-12-12 (ИЖ568-04/д), то можно увидеть следующее:
1. ПБ - плита перекрытия многопустотная;
2. 30 - длина в дециметрах;
3. 12 - ширина в дециметрах;
4. 12 - унифицированная расчетная нагрузка, сверх собственной массы в кН/м2.
Маркировка указывается на торце готового изделия краской темных оттенков с помощью резиновых штампов или трафарета. Помимо марки там же может указываться товарный знак производителя или же его краткое название, серия работы, дата выпуска, отпускная масса плиты, штамп технического контроля с указанием контролера.
Материалы и производство
Изготовление железобетонных плит перекрытия происходит на заводах, согласно Серии ИЖ 568-04/д. Производство происходит методом стендового безопалубочного формирования. В качестве основного сырья для изготовления ПБ 30-12-12 (ИЖ568-04/д), используется тяжелый бетон класса В40 по прочности на сжатие. Такой бетон является материалом повышенной прочности, его характеристики надежности, долговечности и устойчивости превышают другие смеси, причем в любых газовых средах, в том числе и агрессивной. Марки бетонной смеси по морозостойкости и водонепроницаемости определяются автором проекта в индивидуальном порядке, в зависимости от режима эксплуатации и климатических особенностей объекта строительства. Нормируемая прочность бетона плит принята 70% от класса бетона по прочности на сжатие.
Для того чтобы при эксплуатации изделие успешно справлялось с динамическими и статистическими нагрузками, помимо использования особо плотного бетона, плиту армируют. ПБ 30-12-12 (ИЖ568-04/д) армируется снизу сеткой, а сверху двумя стержнями из предварительно напряженной прочной проволоки класса Вр-II диаметром 5 мм. Плиты длиной до 6 метров могут допускаться и без верхней арматуры. Необходимо учитывать тот факт, что в многопустотные плиты ПБ 30-12-12 (ИЖ568-04/д) не закладываются строповочные петли и закладные детали.
Систематический контроль качества должен осуществляться в соответствии с ГОСТ 13015.
Хранение и транспортировка
Изделия храниться в штабелях, в горизонтальном положении, таким образом, чтобы хорошо просматривались маркировочные символы. Слои ряда прокладываются деревянными прокладками толщиной около трех сантиметров. Подъем плит производиться краном с применением захватных устройств, специальных траверс, а также страховочных приспособлений. Перевозят ПБ 30-12-12 (ИЖ568-04/д) тягачами с прицепами, в аналогичном положении, что и при складировании.
Плиты многопустотные ПБ 30-12-12 (ИЖ568-04/д) отзывы


