Размеры:
- Длинна: 6000 мм.
- Ширина: 2000 мм.
- Высота: 140 мм.
- Вес: 4200 кг.
- ГОСТ, Серия: Не выбрано скачать
- Объем бетона: 1,68 м3
- Геометрический объем: 1,68 м3
- Цена: договорная
Стандарт изготовления изделия: Не выбрано
Плиты аэродромных покрытий ПАГ 14 вс1 получили большое распространение в современных условиях. Ни один аэродром не может быть обустроен без этих изделий ЖБИ. Они используются для строительства взлетно-посадочных полос и мест стоянки самолетов. Покрытие в таких местах испытывает большие нагрузки, а срок службы его должен составлять многие годы.
1.Варианты написания маркировки.
Аэродромные плиты ПАГ 14 вс1 маркируют согласно ГОСТ 25912-91. В обозначение входит тип железобетонного изделия и его размерная группа. Варианты написания маркировки может быть произведено следующими способами:
1. ПАГ 14;
2. ПАГ 14 IV;
3. ПАГ 14 V;
4. ПАГ 14 Y;
5. ПАГ 14 AIIIв;
6. ПАГ 14 AтV;
7. ПАГ 14 Т-1;
8. ПАГ 14 бп;
9. ПАГ 14 вс;
10.ПАГ 14 д;
11.ПАГ 14-1* гр.
2.Основная сфера применения.
Изначально плиты выпускались для строительства военных объектов, но уникальные свойства железобетонных изделий позволяют использовать их в самых разных областях строительства. Строительство автомагистралей с большим автомобильным потоком, парковок, производственных объектов, на которых постоянно передвигается большегрузный транспорт – на этих и других объектах использование плит ПАГ 14 вс1 вошло в норму. В таких местах обычный асфальтобетон просто не выдерживает нагрузок и разрушается. Еще одним фактором в пользу широкого распространения аэродромных плит ПАГ 14 вс1 является простота монтажа.
Необходимо просто уложить плиты на ровную поверхность с помощью автокрана, и получить прочную, долговечную и идеально ровную, а также геометрически правильную поверхность. В случае необходимости покрытие из таких элементов можно легко демонтировать и перевезти на новое место. Благодаря размерам изделия, дорожное полотно или иное покрытие, построенное с его использованием, не подвергается деформациям под действием проседающих нагрузок грунтов.
3.Обозначение маркировки изделий.
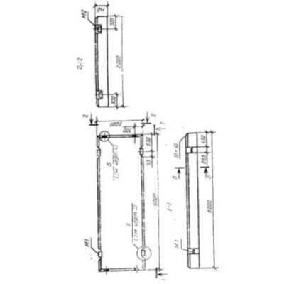
В основное обозначение входит буквенно-цифровая комбинация, где указывают условное обозначение железобетонных изделий, размерный ряд (толщина плиты). Габаритные размеры аэродромных плит ПАГ 14 вс1 – 6000х2000х140 . где указаны длина, ширина и высота изделия.
ПАГ – плита аэродромная гладкая. Масса плит составляет 4200 , геометрический объем – 1,68 , объем бетона на одно изделие – 1,68 .
4.Основные материалы для изготовления и характеристики.
Условия, для которых предназначены плиты ПАГ 14 вс1 самые разнообразные, общего в них только одно – природные условия изменяются в течение года от сильных морозов и до высоких плюсовых температур. Все это определяет способ изготовления изделия. Основная технология – вибропрессование, что позволяет реализовать любое техническое решение.
Используется бетон класса по прочности на сжатие – не менее В25, что соответствует марке по прочности М400. Из дополнительных характеристик должны быть учтены класс морозостойкости F200 (двести циклов на замораживание-размораживание). Стоит отметить, что расчетная температура эксплуатации аэродромных железобетонных плит допускается до -60 градусов по Цельсию. Водонепроницаемость элементов должна соответствовать марке W4. Форма плит должны соответствовать требованиям ГОСТ 25912.0.
Армируются плитные элементы напряженной (использовано предварительное натяжение) арматурой класса Ат IV, АV, АтV, диаметр прутков составляет 10-12 мм. Тип арматурной сетки С1 и С2. Это позволяет в значительной мере уменьшить прогибы плиты под действием прогибающих деформаций. Дополнительно закладывают детали тип М1. Все стальные элементы подвергают антикоррозионной обработке.
Все это делает плиты ПАГ 14 вс1 изделиями очень высокого качества, обладающими высокими эксплуатационными характеристиками. Такая плита должна выдерживать нагрузку до 75 тонн на кв. м.
5.Транспортировка и хранение.
При транспортировке и хранении следует соблюдать осторожность, исключать падение и повреждение изделия ПАГ 14 вс1 . Транспортировка осуществляется согласно действующих Стандартов ГОСТ 25912 и ГОСТ 13015.4, в горизонтальном положении. Погрузочно-разгрузочные работы плит ПАГ 14 вс1 должны производиться с соблюдением правил техники безопасности. При сцеплении за монтажно-стыковочные детали разрешается производить подъем только одной плиты. Если используются специальные такелажные устройства, количество поднимаемых элементов не должно превышать 3-х штук.
При хранении между плитами необходимо применять прокладки из дерева прямоугольной или трапециевидной формы толщиной не мене 30 мм. При хранении в штабелях допускается укладка не более 10 плит, при этом послойные подкладки должны располагаться строго одна над другой. Складское помещение должно быть специально оборудовано, площадка для хранения должна быть ровной и иметь небольшой уклон для обеспечения стекания воды. При хранении на грунтовой поверхности толщина подкладок должна быть не менее 100 мм. Сортировка плит ПАГ 14 вс1 по маркам и партиям желательна.
Плиты аэродромных покрытий ПАГ 14 вс1 отзывы


