Размеры:
- Длинна: 3100 мм.
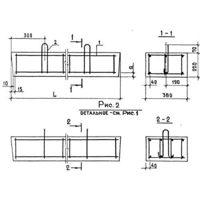
- Ширина: 380 мм.
- Высота: 220 мм.
- Вес: 645 кг.
- ГОСТ, Серия: Серия 1.139-1 скачать
- Объем бетона: 0,258 м3
- Геометрический объем: 0,2592 м3
- Цена: договорная
Стандарт изготовления изделия: Серия 1.139-1
Перемычки плитные БП 31 нашли широкое применение в строительной сфере. При обустройстве оконных и дверных проемов применяют БП 31. Данные изделия отличаются высокой прочностью и надежностью. За счет их использования удается получить долговечные и качественные конструкции. Без применения плитных перемычек обустройство проемов – не допускается. Каждое железобетонное изделие имеет свои особенности и характеристики. Рассмотрим более подробно перемычки БП 31.
1.Варианты написания маркировки.
Железобетонные перемычки плитного типа БП 31 маркируют согласно Серии 1.139-1, согласно которой в обозначение входят буквенно-цифровые комбинации (указывают размерные группы и тип изделия). Маркировка данных изделий может быть написана разными способами:
1. БП 31;
2. БП 31 м.
2.Основная сфера применения.
Перемычки из железобетона БП 31 используют в гражданском частном строительстве домов для перекрытия дверных и оконных проемов. В отличие от брусковых перемычек, данные изделия имеют большую ширину, сечение прямоугольное. Это плоские элементы, которые применяются в строительстве стен и перегородок. Стоит отметить, что ширина перемычек подбирается только в кратном размере толщине стен. Данные перемычки БП 31 могут быть использованы для обустройства общественных и производственных помещений.
За счет особых материалов, из которых изготавливаются плитные перемычки, удается получить высокопрочные конструкции, при этом сами плиты могут воспринимать нагрузки до 7 тонн. Расчетная нагрузка учитывает не только статические и динамические деформации, но и собственный вес изделия.
Плитные перемычки БП 31 рассчитываются на определенные нагрузки, перекрытие проемов сверх указанных сжимающих и сдавливающих деформаций – не допускается. Если перемычка имеет неправильную геометрическую форму, сколы, раковины или наплывы, то эксплуатация изделия также не допускается. Данные условия регламентирует Серия 1.139-1. Данный Регламент также устанавливает полную технологию их изготовления и использования. Нарушение Норм – не допускается, так как обрушение здания может иметь плачевные последствия.
Данные перемычки БП 31 могут быть использованы в достаточно жестких условиях – сейсмическая активность до 7 баллов по шкале Рихтера. Высокая прочность обуславливает стойкость здания, имеют повышенную прочность.
3.Обозначение маркировки изделия.
Основной Регламент, согласно которому производится маркировка плитных перемычек БП 31, Серия 1.139-1. В маркировку входит буквенная и цифровая комбинации. Маркировка включается в себя следующие параметры:
1. БП - плитная перемычка;
2. 31 - длина указывается в дм.
Дополнительно могут быть указаны: наличие строповочных отверстий или монтажных петель, класс арматуры, а также анкерные выпуски, которые применяют для крепления балконов. Геометрический объем БП 31 составляет величина в 0,2592 , масса плиты – 645 , объем бетона на одно изделие – 0,258 . Габаритные размеры с указанием длины, ширина и высота – 3100х380х220 .
4.Основные материалы для изготовления и характеристики.
Плитные перемычки БП 31 изготавливают из тяжелых бетонов высоких марок с плотностью от 2200 до 2500 кг/м3 включительно. Бетон берется марки по прочности на сжатие – не менее чем М200, что соответствует классу прочности на сжатие – В15. По морозостойкости данные изделия должны выдерживать не менее 100-150 циклов замораживания и размораживания. Данные элементы не подвергаются действию водной среды, поэтому водонепроницаемость должна соответствовать марке W2.
Железобетонные перемычки типа ПП могут быть изготовлены с технологическим уклоном боковых и торцевых граней. Так как максимальная нагрузка менее 800 кг/м, то плитные элементы не могут быть использованы при обустройстве несущих стен.
Для повышения прочности плитные перемычки БП 31 подвергают армированию. Для этого используют каркас из гнутых прутков тип КР8 – 5 шт. Класс арматуры должен соответствовать марке А111. Дополнительно закладывают строповочные петли тип П1. Все стальные элементы обрабатывают антикоррозионными составами.
5.Хранение и транспортировка.
Транспортировка перемычек БП 31 производится при помощи спецтранспорта – КАМазы, манипуляторы и прочие машины. Средняя норма загрузки составляет – 50-67 шт. Перевозка осуществляется в специальных контейнерах, все элементы прокладывают деревянными досками по концам перемычек. Все железобетонные изделия укладывают в горизонтальное положение. Хранят БП 31 в штабелях.
Перемычки плитные БП 31 отзывы


