Размеры:
- Длинна: 2720 мм.
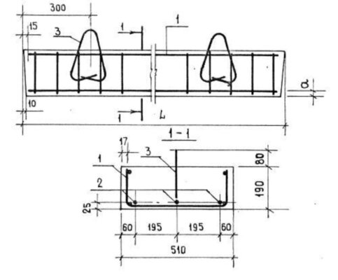
- Ширина: 510 мм.
- Высота: 190 мм.
- Вес: 659 кг.
- ГОСТ, Серия: ГОСТ 948-84 скачать
- Объем бетона: 0,26 м3
- Геометрический объем: 0,2636 м3
- Цена: договорная
Стандарт изготовления изделия: ГОСТ 948-84
Перемычки плитные 10ПП 27-72 АтV (ГОСТ 948-84) нашли широкое применение в строительной сфере. При обустройстве оконных и дверных проемов применяют 10ПП 27-72 АтV (ГОСТ 948-84). Данные изделия отличаются высокой прочностью и надежностью. За счет их использования удается получить долговечные и качественные конструкции. Без применения плитных перемычек обустройство проемов – не допускается. Каждое железобетонное изделие имеет свои особенности и характеристики. Рассмотрим более подробно перемычки 10ПП 27-72 АтV (ГОСТ 948-84).
1.Варианты написания маркировки.
Железобетонные перемычки плитного типа 10ПП 27-72 АтV (ГОСТ 948-84) маркируют согласно ГОСТ 948-84, согласно которому в обозначение входят буквенно-цифровые комбинации (указывают размерные группы и тип изделия).
1. 10ПП 27-72 AтV;
2. 10ПП 27-72 AтIVс.
2.Основная сфера применения.
Перемычки из железобетона 10ПП 27-72 АтV (ГОСТ 948-84) используют в гражданском частном строительстве домов для перекрытия дверных и оконных проемов. В отличие от брусковых перемычек, данные изделия имеют большую ширину, сечение прямоугольное. Это плоские элементы, которые применяются в строительстве стен и перегородок. Стоит отметить, что ширина перемычек подбирается только в кратном размере толщине стен. Данные перемычки 10ПП 27-72 АтV (ГОСТ 948-84) могут быть использованы для обустройства общественных и производственных помещений.
За счет особых материалов, из которых изготавливаются плитные перемычки, удается получить высокопрочные конструкции, при этом сами плиты могут воспринимать нагрузки до 7 тонн. Расчетная нагрузка учитывает не только статические и динамические деформации, но и собственный вес изделия.
Плитные перемычки 10ПП 27-72 АтV (ГОСТ 948-84) рассчитываются на определенные нагрузки, перекрытие проемов сверх указанных сжимающих и сдавливающих деформаций – не допускается. Если перемычка имеет неправильную геометрическую форму, сколы, раковины или наплывы, то эксплуатация изделия также не допускается. Данные условия регламентирует ГОСТ 948-84. Данный Регламент также устанавливает полную технологию их изготовления и использования. Нарушение Норм – не допускается, так как обрушение здания может иметь плачевные последствия.
Данные перемычки 10ПП 27-72 АтV (ГОСТ 948-84) могут быть использованы в достаточно жестких условиях – сейсмическая активность до 7 баллов по шкале Рихтера. Высокая прочность обуславливает стойкость здания, имеют повышенную прочность.
3.Обозначение маркировки изделия.
Основной Регламент, согласно которому производится маркировка плитных перемычек 10ПП 27-72 АтV (ГОСТ 948-84), ГОСТ 948-84. В маркировку входит буквенная и цифровая комбинации. Маркировка включается в себя следующие параметры:
1. 10 – порядковый номер поперечного сечения железобетонного изделия;
2. ПП – Плитная перемычка, тип элемента;
3. 27 – длина, величина указывается в дц.;
4. 72 – расчетная нагрузка в кн/м. В маркировке указывается с округлением до целого числа, для удобства написания;
5. AтV - арматура.
6. Дополнительно могут быть указаны следующие параметры: "П" – наличие строповочных петель в изделии; "А" – анкерные выпуски, для крепления балконов; "С" - сейсмоустойчивые прочные перемычки; геометрический объем одного изделия – 0,2636 , объем бетона- 0,26 .
4.Основные материалы для изготовления и характеристики.
Плитные перемычки 10ПП 27-72 АтV (ГОСТ 948-84) изготавливают из тяжелых бетонов высоких марок с плотностью от 2200 до 2500 кг/м3 включительно. Бетон берется марки по прочности на сжатие – не менее чем М200, что соответствует классу прочности на сжатие – В15. По морозостойкости данные изделия должны выдерживать не менее 100-150 циклов замораживания и размораживания. Данные элементы не подвергаются действию водной среды, поэтому водонепроницаемость должна соответствовать марке W2.
Железобетонные перемычки типа ПП могут быть изготовлены с технологическим уклоном боковых и торцевых граней. Так как максимальная нагрузка менее 800 кг/м, то плитные элементы не могут быть использованы при обустройстве несущих стен.
Для повышения прочности плитные перемычки 10ПП 27-72 АтV (ГОСТ 948-84) подвергают армированию. Для этого используют каркас из гнутых прутков тип КР8 – 5 шт. Класс арматуры должен соответствовать марке А111. Дополнительно закладывают строповочные петли тип П1. Все стальные элементы обрабатывают антикоррозионными составами.
5.Хранение и транспортировка.
Транспортировка перемычек 10ПП 27-72 АтV (ГОСТ 948-84) производится при помощи спецтранспорта – КАМазы, манипуляторы и прочие машины. Средняя норма загрузки составляет – 50-67 шт. Перевозка осуществляется в специальных контейнерах, все элементы прокладывают деревянными досками по концам перемычек. Все железобетонные изделия укладывают в горизонтальное положение. Хранят 10ПП 27-72 АтV (ГОСТ 948-84) в штабелях.
Перемычки плитные 10ПП 27-72 АтV (ГОСТ 948-84) отзывы


