Описание
Отзывы (0)
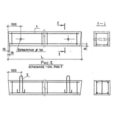
Перемычки ИП 16
Размеры:
- Длинна: 4400 мм.
- Ширина: 380 мм.
- Высота: 450 мм.
- Вес: 1875 кг.
- Объем бетона: 0,75 м3
- Геометрический объем: 0,7524 м3
- Цена: договорная
Перемычки ИП 16 отзывы


