Размеры:
- Длинна: 5820 мм.
- Ширина: 1490 мм.
- Высота: 220 мм.
- Вес: 2500 кг.
- ГОСТ, Серия: Серия 1.220.1-2 скачать
- Объем бетона: 1 м3
- Геометрический объем: 1,9078 м3
- Цена: договорная
Стандарт изготовления изделия: Серия 1.220.1-2
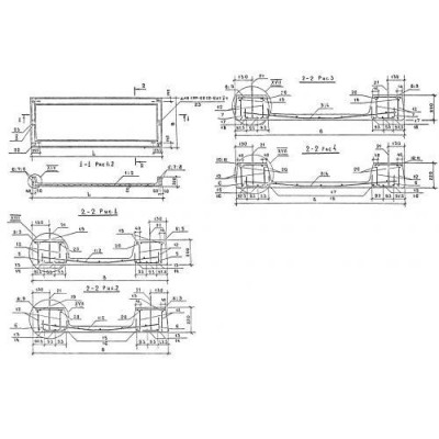
Панели перекрытия ребристые ПР 58-15-8 АтVт - это унифицированные высокопрочные строительные изделия прямоугольной формы, используемые при строительстве крупнопанельных общественных зданий с высотой этажа 3,3 м. Панели запроектированы длиной 2980, 5820, 5980, 7180 и 7020 мм, а их стандартная ширина составляет 1190 и 1490 мм. Элементы выполнены из материалов высоко качества, способны принимать на себя значительные нагрузки, обеспечивают надежность, выносливость, огнестойкость будущему сооружению.
Расшифровка маркировки
Панели перекрытия ребристые кодируются цифровыми и буквенными индексами. Маркировка наносится на боковую грань железобетонного элемента черной влагоустойчивой краской при помощи штампов и трафаретов. Данная марка является отличным помощником при поиске необходимой продукции на складской территории. Согласно Серии 1.220.1-2 Индекс ПР 58-15-8 АтVт имеет следующее значение:
1. ПР - панель ребристая;
2. 58 - длина
3. 15 - ширина;
4. 8 - нагрузка;
5. ATV - класс напрягаемой арматуры;
6. т - тяжелый бетон.
На торцевой стороне так же указывается информация о заводе-изготовителе, пишут массу в килограммах, дату выпуска и должна стоять печать отдела технического контроля, как на изделии, так и в техническом документе.
Материалы и производство
Железобетонные панели перекрытия ребристые ПР 58-15-8 АтVт изготавливаются в соответствии с требованиями ГОСТ 9561-76 и Серии 1.220.1-2. Для прочной основы железобетонного элемента устанавливается бетон марок от М200-350. Показатели морозостойкости составляют не ниже F50, а по водонепроницаемости не ниже W2. Как правило, выбор данной марки зависит еще от температуры воздуха района, где планируется возведение сооружения. Изделия подвергаются прочному армированию. Для панелей пролетами 3,0 и 2,8 м запроектировано армирование сетками с рабочей арматурой класса A-III, а для элементов пролетами 6.0, 5.8, 7.2 и 7.0 м применяется предварительно напрягаемые стержни класса AтV. Сетки и пространственные каркасы изготавливаются из арматуры класса Bp-I согласно ТУ 14-4-659-75. Защитный слой бетона до рабочей арматуры составляет 20 мм. Для пропуска коммуникаций в днище панелей устанавливается отверстие, размеры которого обговариваются в каждом проекте индивидуально. Для удобства монтажа запроектированы монтажные петли из стали класса A-I по ГОСТ 13015-75. Огнестойкость панелей составляет один час. Отпускная прочность бетона устанавливается по согласованию с потребителем. Готовая железобетонная продукция проходит проверочные испытания на прочность, трещиностойкость, жесткость в соответствии с ГОСТ 8829-77. На поверхности железобетонных изделий не допускается ржавых и жировых пятен, трещин и других различных дефектов. На готовую и качественную продукцию сертификат соответствия.
Хранение и транспортировка
Железобетонные панели перекрытия ребристые ПР 58-15-8 АтVт следует хранить в рабочем положении в штабелях высотой не более 2,5 метров. Между рядами необходимо подкладывать деревянные подкладки и прокладки. Транспортировка осуществляться на оборудованном специальными крепежными механизмами транспорте во избежание порче железобетонных панелей. Погрузочно-разгрузочные манипуляции осуществляются путем траверс и захватных устройств. Регламент Серия 1.220.1-2 строго запрещает перетаскивать детали волоком по земле и сваливать в кучу. Чтобы строительные конструкции сохранили все свои эксплуатационные показатели, требуется не только соблюдение техники безопасности, но внимательность и аккуратность.
Панели ПР 58-15-8 АтVт отзывы


