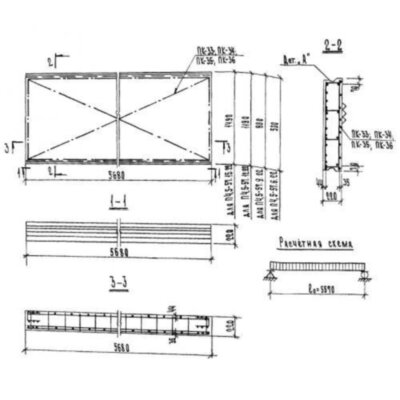
Размеры:
- Длинна: 5680 мм.
- Ширина: 1480 мм.
- Высота: 220 мм.
- Вес: 2320 кг.
- ГОСТ, Серия: Серия 1.143-4 скачать
- Объем бетона: 1,88 м3
- Геометрический объем: 1,8494 м3
- Цена: договорная
Стандарт изготовления изделия: Серия 1.143-4
Панель перекрытия сплошная П 4,5-57-15-22 - это плоское изделие простой прямоугольной формы, созданное путем соединения стальной арматуры, которая отлично работает на растяжении, и бетона, защищающего сталь от коррозии и воспринимающего сжимающие напряжения. Данные панели применяются при строительстве жилых зданий с шагом поперечных стен 3,0-6,0 метров, там конструкция располагается горизонтально и делит строящееся сооружение на этажи, принимая и распределяя при этом различные нагрузки, тем самым обеспечивая устойчивость всего строения.
Расшифровка маркировки
Для того чтобы быстро и легко распознать железобетонное изделие в номенклатурном списке, ему присваиваться марка, состоящая из букв и цифр, разделённых дефисами. Основная цель такого шифра - предоставить информацию в сжатом виде. Так, если рассматривать П 4,5-57-15-22, то можно узнать следующие данные о панели:
1. П - панель перекрытия сплошная;
2. 4,5 - нагрузка;
3. 57 - длина в дм;
4. 15 - ширина в дм;
5. 22 - толщина в см.
Обычно маркировочные знаки прописываются влагостойкой краской черного цвета на торцевой поверхности изделия, там же могут быть указаны дополнительные сведенья о конструкции, такие как дата выпуск, вес, символ завода-производителя и штамп ОТК.
Материалы и производство
Основным документом, определяющим нормы и правила, а также содержащим чертежи для изготовления сплошной панели перекрытия, является Серия 1.143-4. Технологический процесс складывается из нескольких последовательно выполняемых операций, каждая из которых сопровождается пооперационным контролем. Главным материалом для изготовления П 4,5-57-15-22 является автоклавный газобетон марки 100.
Для придания большей прочности изделию, помимо использования плотно бетона, в него закладывают сваренные или связанные между собой стальные элементы, тоесть армируют. Армирование сплошной панели перекрытия происходит с помощью пространственного каркаса, который в свою очередь собирается из плоских каркасов и сеток при помощи контактно-точечной сварки. Допускается сборка объемных арматурных каркасов при помощи вязки стержней вязальной проволокой. Используемая для армирования панелей сталь - классов А-I, А-II, А-III, также используется проволока В-I диаметрами 3 и 4 миллиметра. Пространственный каркас защищается от коррозии цементно-полистирольный или цементно-битумной холодной мастикой.
Итогом производственного процесса является этап проверки железобетонных панелей перекрытий на соответствие их параметров и показателей заявленным. Здесь рассматриваются прочность, жесткость, трещиностойкость, которые должны соответствовать ГОСТ 8829-77 и ГОСТ 12852-67.
Хранение и транспортировка
Складские мероприятия для П 4,5-57-15-22 должны осуществляться в заранее спланированном помещении, с ровным и плотным основанием, а также уклоном для отвода влаги. Изделия размещаются в штабелях, в рабочем положении, предварительно в рассортированном по маркам и типоразмерам виде. Штабель составляется максимум из 6 конструкций. Важным условием здесь является применение деревянного инвентаря шириной 5 сантиметров и толщиной 3 сантиметра, он размещается между рядами на расстоянии не более 5 сантиметров от концов изделий. Прокладки между строительными элементами размещаются друг над другом по вертикали. Сплошные панели перекрытий запроектированы без монтажных петель и рассчитаны на подъем механизмами, оборудованными специальными захватами. Перевозка конструкций должна осуществляться специализированным транспортом, с обязательной защитой от увлажнения.
Панели перекрытий сплошные П 4,5-57-15-22 отзывы


