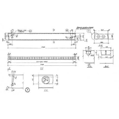
Размеры:
- Длинна: 5160 мм.
- Ширина: 590 мм.
- Высота: 220 мм.
- Вес: 880 кг.
- ГОСТ, Серия: Серия 1.440-1 скачать
- Объем бетона: 0,44 м3
- Геометрический объем: 0,6698 м3
- Цена: договорная
Стандарт изготовления изделия: Серия 1.440-1
Панель многопустотная ПКЛ 10-52-6 АV (1.440-1) - это универсальное железобетонное изделие прямоугольной формы с наличием круглых пустот, которые проходят вдоль всего тела индустриальной панели. Элементы широко используются при возведении многоэтажных производственных зданий под нагрузку до 1000 кг/м2. Регламент Серия 1.440-1 допускает применение таких изделий в обычной неагрессивной среде. Конструкции отличаются хорошей выносливостью, долговечностью, надежны и просты в установке. Огнестойкость многопустотных панелей составляет 0,75 часа.
Расшифровка маркировки
Индустриальные изделия все без исключения, снабжаются маркировочным шифром, который носит сжатую информацию о данном виде панели. Маркировка включает в себя буквы-цифры. Марка наносится на торцевую грань железобетонного элемента яркой и влагоустойчивой краской при помощи штампов и трафаретов. На основании Серии 1.440-1 рассмотрим значение каждой буквы и цифры в маркировки ПКЛ 10-52-6 АV (1.440-1):
1. ПКЛ - тип элемента - панель многопустотная легкобетонная;
2. 10 - нагрузка;
3. 52 - длина;
4. 6 - ширина;
5. AV - класс армирования.
Каждый маркировочный индекс должен отчетливо просматриваться на строительном элементе. Помимо марки, так же на боковой стороне панели и в технических документах пишут дату производства, вес в килограммах, номер партии и проставляется штамп ОТК.
Основные характеристики и изготовление
Нормативный документ серия 1.440-1 содержит ряд требований по производству панелей многопустотных. Элементы выпускаются на специализированном предприятии с использованием новейших технологий. Согласно регламенту за основу принимается бетон марки М200, М250 и М300. Марка бетона по морозостойкости и водонепроницаемости подбирается обычно в индивидуальном порядке и полностью зависит от климатических особенностей района, в котором будет возводиться постройка. Дополнительную прочность, а так же долговечность, железобетонным изделиям придает качественное армирование. В качестве предварительно-напрягаемой арматуры применяется, сталь класса A-IV A-V Aт-V по ГОСТ 5781-61 и ГОСТ 10884-71. Так же детали армируются сварными сетками, применяется горячекатаная сталь класса A-I и обыкновенная арматурная проволока Bp-I по требованиям ГОСТ 6727-58. Все сварные каркасы и сетки изготавливаются путем контактной точечной сварки. Для сопряжения с другими изделиями, применяются закладные детали, а для удобства монтажа в тело панелей закладываются строповочные петли из горячекатаной стали класса A-I. Все металлические составляющие обрабатываются от коррозии специальным раствором. При производстве панелей должен быть обеспечен пооперационный контроль за качеством используемого сырья. Принимаются готовые изделия партиями по ГОСТ 13015-67. Все допустимые отклонения, внешний вид сравнивают с образцами. Все железобетонные изделия, которые прошли итоговые проверки без каких-либо замечаний, получают паспорт качества.
Хранение и транспортировка
Складирование готовой железобетонной продукции ПКЛ 10-52-6 АV (1.440-1) осуществляется на заранее подготовленной площадке. Элементы раскладывают по маркам в определенном порядке. Перевозка проводится на специализированном транспорте, при этом все строительные конструкции необходимо надежно зафиксировать крепежными механизмами. Погрузочно-разгрузочные работы необходимо производить с особой осторожностью путем захвата за строповочные петли. Панели запрещается сбрасывать и перемещать волоком по земле. Все манипуляции проводятся с соблюдением правил техники безопасности, так как внешний вид конструкций и их технические характеристики полностью зависят не только от условий хранения, но от транспортировки.
Панели многопустотные ПКЛ 10-52-6 АV (1.440-1) отзывы


