Размеры:
- Длинна: 4850 мм.
- Ширина: 400 мм.
- Высота: 160 мм.
- Вес: 450 кг.
- ГОСТ, Серия: Серия 1.165.1-16 скачать
- Объем бетона: 0,173 м3
- Геометрический объем: 0,3104 м3
- Цена: договорная
Стандарт изготовления изделия: Серия 1.165.1-16
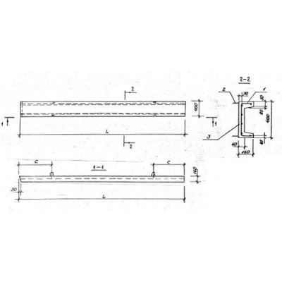
Нащельники НБ 49-4-16 т (1.165.1-16) представляют собой прямоугольную конструкцию, имеющую небольшой скос на одном из торцевых концов. При рассмотрении элемента в поперечном сечении можно заметить, что оно имеет сходство с буквой «П». Для удобства осуществления погрузочно-разгрузочных работ в теле конструкции присутствуют строповочные петли.
Применяются железобетонные нащельники при строительстве крупнопанельных жилых домов 5-9 этажей в высоту, оборудованных теплым чердаком и имеющих безрулонную кровлю, выполненную из мастичных покрытий. Укладка изделий осуществляется после заделки стыков плит покрытий. Конструкции монтируются по слою цементно-песчаного раствора марки М100 толщиной 20 мм. Допускается использование в стыках утеплителя, в виде полужестких минераловатных плит на синтетическом связующем, соответствующих ГОСТ 9573-82, с плотностью не более 250 кг/м3. Конструкции рассчитаны на эксплуатацию в II и III зоне климатических особенностей в районах с нормальными инженерно-геологическими условиями. Минимальная зимняя температура не должна опускаться мене -40 градусов. При расчетах изделий учитывались требования СНиП 2.03.01-84 и СН 35-77. Предел огнестойкости конструкций составляет 1 час в соответствии со СНиП II-2-80.
Маркировочные обозначения
Наносимые на изделия знаки отвечают общепринятому стандарту ГОСТ 23009-79. Они позволяют отразить главные характеристики конструкций. Совокупность символов НБ 49-4-16 т (1.165.1-16) имеет следующую расшифровку:
1. НБ - тип конструкции - нащельник для безрулонной кровли;
2. 49 - длина (дм);
3. 4 - ширина (дм);
4. 16 - толщина (см);
5. т - тяжелый бетон.
Не допускается произвольно корректировать маркировочные знаки. Можно отражать массу, дату производства и штамп отдела технического контроля.
Особенности производства
Подробный процесс производства индустриальных железобетонных нащельников НБ 49-4-16 т (1.165.1-16) прописан в регламенте - Серии 1.165.1-16. Нормативный документ содержит основные рекомендации по использованию материалов. Основным сырьем выступает тяжелый бетон класса В25 по прочности на сжатие. Физико-химические свойства бетона (водонепроницаемость и морозостойкость) подбираются исходя из климатических особенностей индивидуально.
Для армирования строительных конструкций используются специальные гнутые сетки. Для их производства применяется высокопрочная проволока класса Вр и Вр1, отвечающая требованиям ГОСТ 6727-80. Монтажные петли, упрощающие погрузочно-разгрузочные работы, производятся из стали класса AI по ГОСТ 5781-82. Марки стали должны соответствовать ВСт3сп2 или ВСт3пс2. Обязательна противокоррозионная обработка металлических составляющих для продления эксплуатационного срока службы конструкций.
Изделия должны отвечать геометрическим пропорциям, прописанным на рабочих чертежах в нормативно правовой документации. На прошедшие приемосдаточные испытания элементы выдаются сертификаты качества.
Транспортировка и хранение
Приемку, паспортизацию, транспортировку и хранение следует осуществлять с соблюдением требований, изложенных в Серии 1.165.1-16. Укладка должна производиться по специальным схемам, позволяющим уберечь конструкции от возникновения механических повреждений. Следует использовать специализированную технику, оснащенную захватными механизмами и инвентарные деревянные подкладочные материалы, исключающие смещение и бой конструкций. Важно соблюдать технику безопасности на всех этапах работы с железобетонными строительными элементами.
Нащельники НБ 49-4-16 т (1.165.1-16) отзывы


