Размеры:
- Длинна: 3800 мм.
- Ширина: 1840 мм.
- Высота: 250 мм.
- Вес: 1720 кг.
- ГОСТ, Серия: Серия ИИ 65 скачать
- Объем бетона: 0,69 м3
- Геометрический объем: 1,748 м3
- Цена: договорная
Стандарт изготовления изделия: Серия ИИ 65
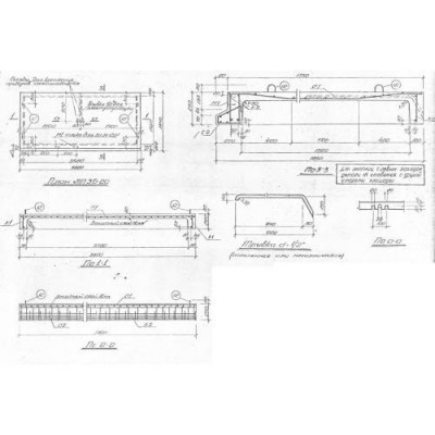
Лестничные площадки ЛП 36-20 являются непременными составляющими межэтажных переходов в зданиях общественного назначения, возводимых в несколько этажей. Они занимают лидирующие позиции при обустройстве межэтажных переходов торговых либо развлекательных центрах. Это обусловлено тем, что согласно нормативной Серии ИИ 65 способны выдерживать нагрузки более 400 кг/м2. Их выпускают с применением модифицированных бетонных смесей в виде прямоугольной платформы. Они обладают значительным весом, потому имеют толщину в 25 см. Вследствие этого с тыльной стороны на них выполнена выборка прямоугольной конфигурации. При этом по их контуру оставлены перемычки толщиной 100 мм. Этой поверхностью плиты опираются на поддерживающие балки.
Большинство ЖБК стараются выпускать лестничные площадки, в том числе и модели ЛП 36-20, с несколькими вариантами оформления лицевой поверхности: гладкой, шлифованной либо облицованной керамической плиткой. Любой способ отделки оговаривается в основной маркировке.
На краях рабочей поверхности предусмотрены несколько строповочных стальных петли, предназначены для простоты и удобства выполнения погрузки/выгрузки либо монтажных работ. После завершения установки плит в конструкцию межэтажных переходов эти транспортировочные приспособления необходимо обязательно срезать.
1. Варианты маркировки
Любой произведенный ж/б узел, применяемый при сборке межэтажных двухмаршевых переходов в зданиях общественного назначения, непременно кодируются несмываемой черной краской с использованием буквенно-цифровой аббревиатуры. Так Серия ИИ 65 предоставляет возможность ознакомиться с несколькими самыми популярными вариантами маркировки площадок лестничных:
1. ЛП 24-14;
2. ЛП 28-17.
2. Основная сфера применения
Лестничные площадочные плиты, имеющие значительную толщину около 250 мм, пользуются широкой востребованностью при обустройстве межэтажных лестниц в зданиях, обладающих довольно высоким уровнем движения людей. То есть там, где интенсивное людской поток способствует созданию повышенных нагрузок на все элементы маршей лестничных переходов. Промежуточная площадка ЛП 36-20, как и другие аналогичные им детали, предназначены обеспечивать надежное опирание межэтажным маршам и созданию своеобразного деления на этажи здания. В первую очередь они являются опорными перекрытием лестничных пролетов.
Разработанная в конце 60-х годов прошлого столетия Серия ИИ 65 не претерпевала существенных изменений. Созданные по ее рекомендациям конструкции площадок и лестничных маршей до сих пор актуальны при строительстве высоких зданий с высотой этажей от 7,2 до 3,6 м различного функционального назначения. Такая популярность обоснована наличием довольно хороших эксплуатационных характеристик. Лестничные площадки ЛП 36-20 с прилегающими маршами способны выдерживать нагрузки до 400 кг/м2. Их поверхности обладают достаточно высокой устойчивостью к износу и трещинообразованию. К тому с учетом конкретного проекта, добавляя в бетонную смесь соответствующие модификаторы, можно получить составляющие межэтажных переходов с любой водонепроницаемостью и морозоустойчивостью. Так же необходимо учитывать, что быстро и легко монтируются. А разнообразные варианты отделки лицевых поверхностей в заводских условиях позволяют предать подъезду оригинальную привлекательность на долгие годы.
3. Обозначение маркировка изделия
Как и любые произведенные ж/б составляющие межэтажных переходов зданий, лестничные площадки непременно кодируются по довольно простой схеме с использованием несмываемой краски и буквенно-цифровой аббревиатуры с учетом рекомендаций, оговоренных в Серии ИИ 65. Такая условная маркировка кратко информирует: заглавными буквами о месте применения в конструкции межэтажных переходов в зданиях, а несколько цифр разделенных «дефисом» – об их габаритных размерах. Прописной буквой указывается место расположения площадок относительно лестничного марша.
Эта условная аббревиатура, нанесенная на одну из боковых граней площадок ЛП 36-20, предоставляет покупателю информацию следующего содержания;
1. ЛП – межэтажные лестничные площадки;
2. 36 – длина;
3. 20 – ширина.
Межэтажные площадки для лестничных конструкций в общественных зданий обладают следующими техническими параметрами:
Длина = 3800;
Ширина = 1840;
Высота = 250;
Вес = 1720;
Объем бетона = 0,69;
Геометрический объем = 1,748.
На одной из боковых граней произведенных деталей рекомендуется дополнительно к основной маркировке также наносить дату производства, вес, штамп ОТК.
4. Изготовление и основные характеристики
Традиционно для выпуска разнообразных ж/б деталей, применяемых при сборке межэтажных переходов общественных зданиях, включая и лестничных площадок ЛП 36-20, на любом ЖБК специалисты стараются использовать в основном бетоны с достаточно хорошей плотностью с расчетной прочностью по сжатию класса В22,5. Такие материалы с добавлением специальных присадок дают возможность получать продукцию с довольно высокими параметрами по износостойкости, жесткости, устойчивости к появлению трещин. Так как срок эксплуатации плит площадок во многом зависит от этих характеристик, то их дополнительно в обязательном порядке испытывают в лабораторных условиях под требуемыми нагрузками.
Гарантированно обеспечить расчетную несущую способность, оговоренную в нормативной Серии ИИ 65, помогают армирующие плоские сетки и пространственные каркасы, заложенные в структуру ж/б деталей. Согласно этого документа она должна составлять не менее 400кгс. Все армирующие элементы свариваются методом точечной контактной электросварки с использованием горячекатаной стальной арматуры класса A-III.
Формовку межэтажных площадок ЛП 36-20 рекомендуется производить в горизонтальных формах лицом вниз. Такая технология дает возможность производить детали, чтобы на верхней поверхности получался класс отделки не ниже А5. Такой уровень шероховатости не требует последующей декоративной обработки рабочих плоскостей площадок межэтажных маршей.
5. Транспортировка и хранение
Как и любые плоские детали, аналогичные площадкам лестничным ЛП 36-20, согласно рекомендациям, приведенным в нормативной Серии ИИ 65, желательно перевозить в вертикальном положении. Во время хранения на длительный срок их можно укладывать в несколько ярусов стопками высотой, не превышающей 2,0 метров. При этом необходимо прокладывать по каждую ж/б деталь по несколько деревянных брусьев толщиной не менее 5,0 см.
Лестничные площадки ЛП 36-20 отзывы


