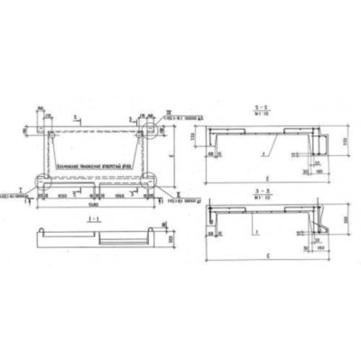
Размеры:
- Длинна: 2480 мм.
- Ширина: 1900 мм.
- Высота: 320 мм.
- Вес: 1370 кг.
- Объем бетона: 0,55 м3
- Геометрический объем: 1,5078 м3
- Цена: договорная
Лестничные площадки ребристые 2ЛП 22-18-4 обязательный элемент любого высотного здания. В конструкцию входят марши или блок ступеней, площадки, крепежные детали, при этом марш и площадки могут быть выполнены в виде единой конструкции. В зависимости от типа здания и его конструкции могут быть использованы лестничные площадки ребристые 2ЛП 22-18-4 .
Это железобетонные изделия особой формы, которые отвечают требованиям по прочности, надежности и долговечности. За счет этих параметров достигается высокая безопасность эксплуатации готового сооружения. Могут быть применены ребристые площадки для панельных, блочных и кирпичных зданий. Лестничная платформа делит марш на две части, что позволяет облегчить подъем между этажами и повысить безопасность.
Максимальное число ступенек в марше 18 штук, далее в строгом соответствии действующими стандартами (Серия 1.152.1-8) устанавливают лестничную платформу. В каждом конкретном случае ЖБ-изделия подбираются в одной чрезмерной группе. Для одинаковых лестничных маршей лестничные площадки могут иметь различную длину.
1.Варианты написания маркировки изделий.
Обозначают ребристые площадки 2ЛП 22-18-4 согласно Серии 1.152.1-8 и записывают цифробуквенную кодировку разными вариантами:
1. 2ЛП 22-18-4 ;
2. 2ЛП 22.18.4.
2.Основная сфера применения.
Основное отличие ребристых площадок 2ЛП 22-18-4 от плоских прямых (например, тип ЛМ) наличием специальных пазов и выемок для стыковки с лестничными маршами и другими элементами. Средняя высота этажа 2,8 метра. Для данных площадок конструктивно не предусматривается наличие фризовых ступеней.
Основное предназначение площадок с ребрами соединение лестничных маршей и в качестве входной платформы. Стоит отметить, что площадки данного типа могут иметь отверстие для установки мусоропровода. Поверхность плиты обрабатывается и может быть отделана керамической плиткой. Допускается шлифовка. Все типы обработки лестничных изделий указываются в маркировке дополнительной буквенной комбинацией.
3.Обозначение маркировки изделий.
Площадка ребристая марки 2ЛП 22-18-4 выпускается длиной 2480 , ширина 1900 , высотой - 320 , массой 1370. Согласно Серии 1.152.1-8 в маркировку включены тип изделия и основные размеры. Буквами в последней группе маркировки обозначают: "г" - глянцевая, "ш" - шлифованная, "м" - наличие мусоропровода, "к" - наличие консолей, ";" - ;52>5 8A?>;=5=85 M;5<>2 ;5AB=8F, "п" - 15B>= ?>=865=>9 ?@>=8F05<>AB8.
Геометрический объем одного изделия составляет 1,5078 , объем бетона на один элемент 0,55 .
4.Основные материалы для изготовления и их характеристики.
В качестве исходного сырья для ребристых площадок 2ЛП 22-18-4 используют только бетон тяжелых марок. Класс по прочности на сжатие должен соответствовать пределами В15. Уплотняют бетонную смесь в специальных вибрационных установках. Вибропрессование оптимальная технология для изготовления площадок для лестниц. Этот способ позволяет с высокой вероятностью избавиться от всех пузырьков воздуха и получить однородную смесь высокой плотности.
Высокая прочность и жесткость конструкции согласно проекту достигается также за счет копирования. Используется высокомарочная сталь в виде горячекатаной проволоки или стержневой арматуры с предварительным напряжением класса стали A-III и Вр-1 согласно ГОСТ 5781-82. Используется только специальная качественная сталь, так как площадки воспринимают достаточно большие нагрузки, ударные и сжимающие деформации. Сварные каркасы заполняют бетонной смесью с расчетом, что верхний слой будет покрывать арматуру не менее чем на 30 мм. Эксплуатация с оголенными арматурными выпусками, со сколами на поверхности не допускается. В тело плиты дополнительно закладывают строповочные петли, может быть проектом предусмотрено наличие гнезд.
Бетон для ребристых площадок должен отвечать определенным требованиям. В состав вводят гравийный щебень мелких фракций (контролируется прочность, лещадность), песок речной мелкий, пластифицирующие и воздухововлекающие добавки. При помощи этих компонентов достигается высокая стойкость к действию внешней среды.
Площадки ребристые 2ЛП 22-18-4 могут использоваться при отрицательных температурах (расчетные параметры достигают до -55 градусов). Морозостойкость достигает для данных изделий до 150 циклов полного замораживания и последующего размораживания. Высокая стойкость к разрушительному действию внешней среды позволило существенно расширить сферу применения платформ 2ЛП 22-18-4 . Качественные исходные материалы позволяют получить прочные изделия, которые обеспечат высокую пропускную способность при минимальной истираемости поверхности.
5.Транспортировка и хранение.
Транспортируют плиты в горизонтальном положении с дополнительным закрепление каждого элемента, также послойно укладывают деревянные доски толщиной 30 мм. Погрузка и разгрузка производится согласно правилам техники безопасности. Навал изделий не допускается. Хранение осуществляется в штабелях.
Лестничные площадки 2ЛП 22-18-4 отзывы


