Описание
Отзывы (0)
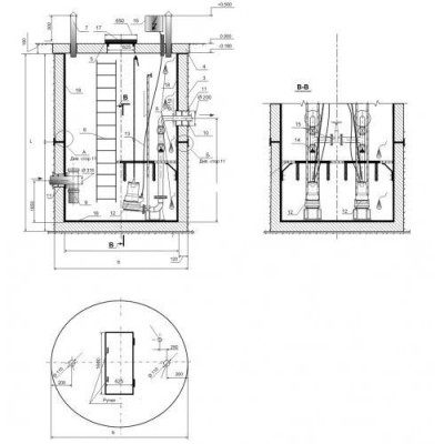
Канализационные насосные станции КНС 3000
Размеры:
- Длинна: 3200 мм.
- Ширина: 3200 мм.
- Высота: 5000 мм.
- Вес: 31250 кг.
- Объем бетона: 12,5 м3
- Геометрический объем: 51,2 м3
- Цена: договорная
Канализационные насосные станции КНС 3000 отзывы


