Описание
Отзывы (0)
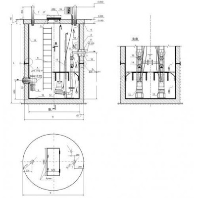
Канализационные насосные станции КНС 2000
Размеры:
- Длинна: 2500 мм.
- Ширина: 2500 мм.
- Высота: 6000 мм.
- Вес: 23500 кг.
- Объем бетона: 9,4 м3
- Геометрический объем: 37,5 м3
- Цена: договорная
Канализационные насосные станции КНС 2000 отзывы


