Размеры:
- Длинна: 5000 мм.
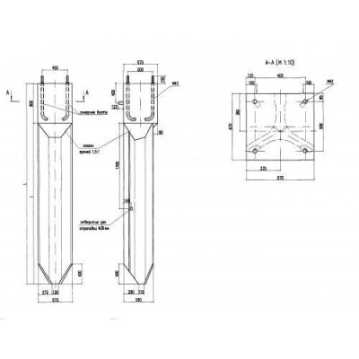
- Ширина: 670 мм.
- Высота: 670 мм.
- Вес: 2080 кг.
- ГОСТ, Серия: Рабочие чертежи 4182и скачать
- Объем бетона: 0,83 м3
- Геометрический объем: 2,2445 м3
- Цена: договорная
Стандарт изготовления изделия: Рабочие чертежи 4182и
Фундамент трехлучевой с анкерным креплением ТСП 5,0-3 Эм - это железобетонное изделие, которое в верхней части состоит из монолитного блока, а вся остальная конструкция имеет специфическую форму с трехлучевым поперечным сечением. Лучи располагаются под углами 120 градусов. Такие изделия используются для установки в грунте на железнодорожных участках металлических и железобетонных опор контактной сети и стоек (на постоянном и переменном токе). Запроектированные на основании Рабочих чертежей 4182и конструкции, эксплуатируются в различных климатических условиях, в том числе и при отрицательной температурой до -55 градусов по Цельсию и в районах с сейсмической активностью до девяти баллов.
Расшифровка маркировки изделия
Все ЖБИ изделия, в том числе трехлечевые фундаменты, имеют определенную маркировку, которая представляет собой особый шифр. Каждая группа такого шифра несет в себе смысловую нагрузку о важных характеристиках и конструктивных особенностях изделия. Так, если рассматривать расшифровку ТСП 5,0-3 Эм, можно увидеть следующее:
1. ТСП - фундамент для стоек жестких поперечин;
2. 5,0 - длина (в метрах);
3. 3 - индекс несущей способности;
4. э - способность противостоять разрушению от коррозии (электрической);
5. м - способность выдержать температуру наружного воздуха ниже -40 градусов по Цельсию.
Маркировочные символы наносятся на торцевую часть готового изделия. Используемая здесь краска должна быть темных оттенков, стойкая к воздействию влаги, ультрафиолетовому излечению солнца, для того чтобы важные сведения не стерлись случайным образом.
Материалы и производство
Железобетонные фундаменты изготавливаются в соответствии с определенным регламентом - РЧ 4182и. Производство происходит в заводских условиях, в специальных металлических формах. Запроектированы ТСП 5,0-3 Эм из тяжёлого бетона марки М400. Этот вид бетонной смеси получается с помощью вяжущих составляющих цемента, добавок и наполнителей. Неорганические вещества в данном бетоне являются основными компонентами. Ингредиенты, входящие в состав, позволяют придать раствору В30 необходимые свойства. Марка по морозостойкости - F150-F200, марка по водонепроницаемости - W6.
Для повышения прочности, устойчивости к разным типам воздействий для фундамента применяется метод армировки бетона. Армирование - это способ увеличения несущей способности конструкции с помощью материалов, имеющих высокие прочностные свойства. ТСП 5,0-3 Эм армируется гнутыми сетками из стали класса А-III, которые соединены посредством сварки в единый пространственный каркас. По концам лучей по всей длине фундамента, расположена продольная рабочая арматура, которая определяет несущую способность. Дополнительно, процесс производства предусматривает наличие в конструкции специальных монтажных петель из стали класса А-I, посредством которых выполняется легкая установка изделия на необходимые крепления.
После изготовления, фундаменты должны быть приняты ОТК завода - производителя на основании ГОСТ 13015.1.
Хранение и транспортировка
Изделия складируются в специально подготовленных для этого помещениях с ровным плотным основанием, и уклоном для отведения влаги. Важным условием является использование деревянного инвентаря - прокладок и подкладок. Погрузочно - разгрузочные работы проводятся с захватом, за предусмотренные для этого стальные петли. Перевозят фундаменты трехлучевые различными видами транспорта, с учетом правил безопасности, установленных на ТС.
Фундаменты ТСП 5,0-3 Эм отзывы


