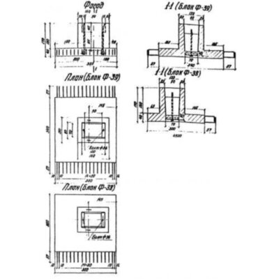
Фундаменты Ф 38 (3.503-28)
Размеры:
- Длинна: 3200 мм.
- Ширина: 3400 мм.
- Высота: 1700 мм.
- Вес: 13500 кг.
- ГОСТ, Серия: Серия 3.503-28 скачать
- Объем бетона: 5,4 м3
- Геометрический объем: 18,496 м3
- Цена: договорная
Стандарт изготовления изделия: Серия 3.503-28
Фундамент Ф 38 (3.503-28) представляет собой состоящую из двух частей конструкцию. Первая часть представлена в виде прямоугольной плиты основания с размещенными на ней арматурными выпусками, располагаемыми на одном из торцевых концов. Вторая конструкция - это прямоугольный короб, размещённый на плите основания, с несквозным трапециевидным в поперечном сечении отверстием. Для упрощения погрузочно-разгрузочных работ на теле конструкций присутствуют строповочные петли.
Применяются унифицированные фундаменты при строительстве путепроводов, используемых на автомобильных и железных дорогах в районах пересечения различного уровня высоты. Они используются на перегонах и станциях, и позволяют в значительной степени упростить перемещение людей и движение транспортных средств в местах подобных развязок. Конструкции используются совместно со стойками, обеспечивающими надежную опору размещаемых выше пролетных строений, препятствуя проседанию элементов в грунт. При разработке и проектировании учитывались требования действующих регламентов, таких как СНиП III- Д.7-62 и СН 200-62.
Маркировочное обозначение
Для упрощения обнаружения необходимых строительных материалов были введены знаки, отражающие главные характеристики элементов. Совокупность символов Ф 38 (3.503-28) имеет следующую расшифровку:
1. Ф - тип конструкции фундамент;
2. 38 - порядковый номер типоразмера изделия.
Запрещено вносить произвольные корректировки в марке. Дополнительно следует отражать дату производства, массу и штамп отдела технического контроля.
Особенности производства
В нормативном документе Серии 3.503-28 подробно прописан процесс производства фундаментов Ф 38 (3.503-28). Согласно требованиям нормативного документа следует осуществлять изготовление конструкций в стальных опалубочных формах, так как они позволяют гарантировать соблюдение геометрических пропорций, представленных на рабочих чертежах и обеспечить высокое качество изделий. Главным материалом следует использовать тяжелый бетон марки М300 по прочности на сжатие с морозостойкостью не ниже F300. Защитить элементы от раннего развития коррозионных образований позволит соблюдение проектной величины защитного слоя, представленной на рабочих чертежах. Для этого перед укладкой арматуры до заливки бетонной смеси необходимо размещать специальные фиксаторы, располагаемые под арматурные каркасы. Для изготовления каркасов применяется сталь классов AI, AII и AIII, отвечающая требованиям ГОСТ 5781-61 марки ВСт5сп2, а также ВСт3сп2 в соответствии с требованиями ГОСТ 380-71. Для производства строповочных петель рекомендуется использование стали класса AI диаметром 20 мм. Не допускается наличие оголенного армирования, сколов, трещин и раковин на поверхности конструкции. Перед поставкой конечному потребителю изделия проходят досмотр и приемосдаточные испытания, все результаты фиксируются в паспортах, предоставляемых заказчику.
Транспортировка и хранение
Складирование и транспортировка фундаментов Ф 38 (3.503-28) должны производиться с соблюдением правил по технике безопасности. Укладка должна осуществляться в рабочем положении на специальных опорах, предотвращающих соприкосновение конструкций с грунтом. Важно беречь изделий от любых механических повреждений, а также предохранять арматурные выпуски от порчи. Для осуществления погрузочно-разгрузочных работ необходимо применять специализированную технику, оборудованную захватными механизмами, исключительно за строповочные петли. Запрещён сброс, навал и перемещение волоком. Все некондиционные элементы должны отбраковываться и складироваться отдельно.
Фундаменты Ф 38 (3.503-28) отзывы


