Размеры:
- Длинна: 6000 мм.
- Ширина: 2000 мм.
- Высота: 180 мм.
- Вес: 5400 кг.
- ГОСТ, Серия: Серия 3.506-3 скачать
- Объем бетона: 2,16 м3
- Геометрический объем: 2,16 м3
- Цена: договорная
Стандарт изготовления изделия: Серия 3.506-3
Плиты аэродромных покрытий ПАГ 18 (3.506-3) получили большое распространение в современных условиях. Ни один аэродром не может быть обустроен без этих изделий ЖБИ. Они используются для строительства взлетно-посадочных полос и мест стоянки самолетов. Покрытие в таких местах испытывает большие нагрузки, а срок службы его должен составлять многие годы.
1.Варианты написания маркировки.
Аэродромные плиты ПАГ 18 (3.506-3) маркируют согласно Серии 3.506-3. В обозначение входит тип железобетонного изделия и его размерная группа. Варианты написания маркировки может быть произведено следующими способами:
1. ПАГ 18;
2. ПАГ 18 т.
2.Основная сфера применения.
Изначально плиты выпускались для строительства военных объектов, но уникальные свойства железобетонных изделий позволяют использовать их в самых разных областях строительства. Строительство автомагистралей с большим автомобильным потоком, парковок, производственных объектов, на которых постоянно передвигается большегрузный транспорт – на этих и других объектах использование плит ПАГ 18 (3.506-3) вошло в норму. В таких местах обычный асфальтобетон просто не выдерживает нагрузок и разрушается. Еще одним фактором в пользу широкого распространения аэродромных плит ПАГ 18 (3.506-3) является простота монтажа.
Необходимо просто уложить плиты на ровную поверхность с помощью автокрана, и получить прочную, долговечную и идеально ровную, а также геометрически правильную поверхность. В случае необходимости покрытие из таких элементов можно легко демонтировать и перевезти на новое место. Благодаря размерам изделия, дорожное полотно или иное покрытие, построенное с его использованием, не подвергается деформациям под действием проседающих нагрузок грунтов.
3.Обозначение маркировки изделий.
В основное обозначение входит буквенно-цифровая комбинация, где указывают условное обозначение железобетонных изделий, размерный ряд (толщина плиты).
1. ПАГ – плита аэродромная гладкая;
2. 18 - высота плиты.
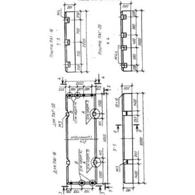
Габаритные размеры аэродромных плит ПАГ 18 (3.506-3) – 6000х2000х180, где указаны длина, ширина и высота изделия.
Масса плит составляет 5400 , геометрический объем – 2,16 , объем бетона на одно изделие – 2,16
4.Основные материалы для изготовления и характеристики.
Условия, для которых предназначены плиты ПАГ 18 (3.506-3) самые разнообразные, общего в них только одно – природные условия изменяются в течение года от сильных морозов и до высоких плюсовых температур. Все это определяет способ изготовления изделия. Основная технология – вибропрессование, что позволяет реализовать любое техническое решение.
Используется бетон класса по прочности на сжатие – не менее В25, что соответствует марке по прочности М400. Из дополнительных характеристик должны быть учтены класс морозостойкости F200 (двести циклов на замораживание-размораживание). Стоит отметить, что расчетная температура эксплуатации аэродромных железобетонных плит допускается до -60 градусов по Цельсию. Водонепроницаемость элементов должна соответствовать марке W4. Форма плит должны соответствовать требованиям Серии 3.506-3.
Армируются плитные элементы напряженной (использовано предварительное натяжение) арматурой класса Ат IV, АV, АтV, диаметр прутков составляет 10-12 мм. Тип арматурной сетки С1 и С2. Это позволяет в значительной мере уменьшить прогибы плиты под действием прогибающих деформаций. Дополнительно закладывают детали тип М1. Все стальные элементы подвергают антикоррозионной обработке.
Все это делает плиты ПАГ 18 (3.506-3) изделиями очень высокого качества, обладающими высокими эксплуатационными характеристиками. Такая плита должна выдерживать нагрузку до 75 тонн на кв. м.
5.Транспортировка и хранение.
При транспортировке и хранении следует соблюдать осторожность, исключать падение и повреждение изделия ПАГ 18 (3.506-3) . Транспортировка осуществляется согласно действующих Стандартов ГОСТ 25912 и ГОСТ 13015.4, в горизонтальном положении. Погрузочно-разгрузочные работы плит ПАГ 18 (3.506-3) должны производиться с соблюдением правил техники безопасности. При сцеплении за монтажно-стыковочные детали разрешается производить подъем только одной плиты. Если используются специальные такелажные устройства, количество поднимаемых элементов не должно превышать 3-х штук.
При хранении между плитами необходимо применять прокладки из дерева прямоугольной или трапециевидной формы толщиной не мене 30 мм. При хранении в штабелях допускается укладка не более 10 плит, при этом послойные подкладки должны располагаться строго одна над другой. Складское помещение должно быть специально оборудовано, площадка для хранения должна быть ровной и иметь небольшой уклон для обеспечения стекания воды. При хранении на грунтовой поверхности толщина подкладок должна быть не менее 100 мм. Сортировка плит ПАГ 18 (3.506-3) по маркам и партиям желательна.
Аэродромные плиты ПАГ 18 (3.506-3) отзывы


